Maison neuve à
Vitry-en-Artois
(62490) Référence :
PG2265700_3
Prix du projet : Maison avec Terrain
prix 272 000 €
- 5 pièces
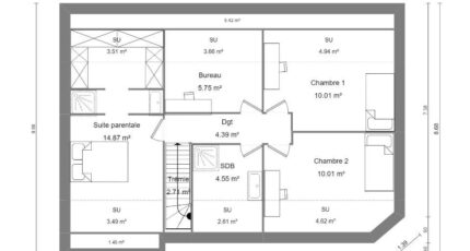
- 3 chambres
- Surface maison 115 m2
Maison à construire à Vitry en artois
EMPLACEMENT PRIVILÉGIÉ - MAISON NEUVE A CONSTRUIRE
VOTRE CONSEILLERE : Pauline GOMEZ - O6 19 56 27 71
Venez découvrir votre future maison neuve.
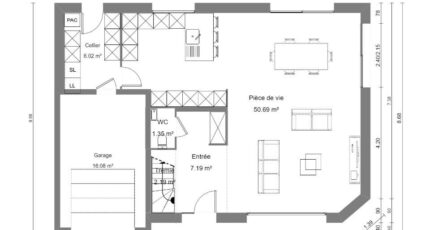
Il s'agit d'une maison de 3 pièces de plain-pied, d'une surface de 115 m².
Construction conforme aux dernières normes RE2020 (basse consommation)
Mode de chauffage dernière génération via pompe à chaleur
Plans sur mesures et modifiables à la demande.
Cette maison dispose de 4 chambres, d'une cuisine, d'une salle de bains, et un cellier
Garanties et assurances obligatoires incluses (voir détails en agence).
Hors raccordements, hors branchements,
Terrain sélectionné et vu pour vous sous réserve de disponibilité et au prix indiqué par notre partenaire foncier.
A proximité des écoles et commerces de proximités.
Son prix de vente est de 272 000 € frais de notaire non inclus sur le terrain.
Contactez Pauline GOMEZ (O6 19 56 27 71) pour toute information sur cette maison.
Pourquoi faire confiance à Maisons France confort ?
Maisons France Confort c'est le numéro 1 en France de la construction de maisons individuelles avec nos maisons personnalisables et qui s'adaptent à chaque budget.
C'est un accompagnement personnel dans toutes les démarches et étapes de votre projet immobilier (terrain, maison et financement entre autres).
Mentions légales
Terrain proposé par un partenaire foncier selon disponibilités et autorisation de publicité au prix de 64 000 €. Hors droit d'enregistrement et frais de notaire. Maison proposée, avec un contrat de construction de maison individuelle, dans le cadre de la loi du 19/12/1990, au prix de 208 000 € (Hors branchements et raccordements, papiers peints, peintures, revêtement de sol dans les chambres, qui sont chiffrés dans les travaux qui restent à charge du client. Tarif modifiable sans préavis). Étiquette énergie : A. Différents modèles disponibles pour ce terrain. Assurances et garanties du constructeur comprises (RC professionnelle, décennale, dommage ouvrage).Agence Maisons France Confort de Cambrai (59400)
- Téléphone :
- 03 27 81 47 17
- Adressse :
- 3, Mail Saint Martin
59400 Cambrai, France
