Maison neuve à
Voinsles (77540) Référence : DC2385065_3

Prix du projet : Maison avec Terrain

prix 314 200 €

  • 5 pièces
  • 3 chambres
  • Surface maison 90 m2

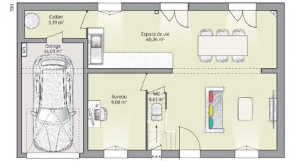
VENTE d'une maison de 5 pièces (90 m²) à Voinsles
PROCHE DE MELUN - MAISON 5 PIÈCES NEUVE
À deux pas de Melun, Maisons France Confort Melun vous présente à vendre à Voinsles (77540), cette maison de 5 pièces de 90 m² et de 348 m² de terrain. Son intérieur est composé de trois chambres, d'une cuisine et d'une salle de bains.
C'est une maison de 2 niveaux. Elle est neuve.
L'École Primaire Jean de la Fontaine est implantée à moins de 10 minutes à pied. Il y a un tennis dans les environs.
Elle est proposée à l'achat pour 314 200 €.
Contactez notre agence (David CORDIER : 06-10-79-38-15) pour plus d'informations sur la maison ou sur les démarches à suivre. Maisons France Confort Melun vous accompagne dans tous vos projets immobiliers et à toutes les étapes de votre projet.

Annonce proposée par un Agent Commercial Partenaire.

Mentions légales

Terrain proposé par un partenaire foncier selon disponibilités et autorisation de publicité au prix de 99 000 €. Hors droit d'enregistrement et frais de notaire. Terrain + Maison proposés au prix de 314 200 € (Hors branchements et raccordements, papiers peints, peintures, revêtement de sol dans les chambres. Tarif modifiable sans préavis). Etiquette énergie : A. Différents modèles disponibles pour ce terrain. Assurances et garanties du constructeur (RC professionnelle, décennale, dommage ouvrage, garantie de remboursement de l'acompte, livraison à prix et délai convenu) : https://www.maisons-france-confort.fr/mentions-legales/. HEXAOM Services est enregistré auprès de l'ORIAS en tant que Courtier en financement, Niveau 1, sous le numéro 14001345.

Contactez l'agence de Melun

01 64 14 43 20

    * Champs obligatoires

    Vos informations sont traitées par HEXAOM et transmises à un conseiller commercial qui vous contactera afin de répondre à votre demande. Les plans et images présentés sur notre site sont la propriété d’HEXAOM et ne peuvent pas être reproduits sans son accord. Pour retrouver notre politique de protection des données personnelles et exercer vos droits conformément à la « loi informatique et liberté » cliquez-ici.