Maison neuve à
Vouhé (17700) Référence : JH2384151_1

Prix du projet : Maison avec Terrain

prix 229 630 €

  • 5 pièces
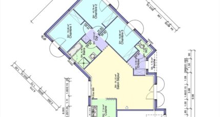
  • 3 chambres
  • Surface maison 90 m2

Offre Terrain + Maison à Vouhé (17) - 229 630 €

Sur la charmante commune de Vouhé, votre projet de vie alliant confort, modernité et qualité de vie.

Les atouts de Vouhé:
Cadre de vie calme et verdoyant
Commune conviviale et dynamique
Proximité de Surgères et de sa gare TGV
Accès rapide à La Rochelle et à l'A10
Écoles et services à proximité
Environnement idéal pour les familles

Projet de maison personnalisable - Maisons Acco (Groupe HEXAOM)

Cette maison contemporaine offre :
3 chambres confortables
Grande pièce de vie lumineuse, ouverte sur le jardin
Cellier pratique
Garage attenant
Agencement moderne et fonctionnel, pensé pour le confort au quotidien

Terrain de 489 m²
Offre Terrain + Maison : 229 630 € (hors frais de notaire, raccordements et options)

Projet entièrement personnalisable selon vos envies et votre budget avec l'accompagnement d'un constructeur de confiance.

Contact : Julie Holdry
O7 77 88 33 95

Mentions légales

Terrain proposé par un partenaire foncier selon disponibilités et autorisation de publicité au prix de 52 500 €. Hors droit d'enregistrement et frais de notaire. Terrain + Maison proposés au prix de 229 630 € (Hors branchements et raccordements, papiers peints, peintures, revêtement de sol dans les chambres. Tarif modifiable sans préavis). Etiquette énergie : A. Différents modèles disponibles pour ce terrain. Assurances et garanties du constructeur (RC professionnelle, décennale, dommage ouvrage, garantie de remboursement de l'acompte, livraison à prix et délai convenu) : https://www.maisons-acco.com/informations-legales/.

Contactez l'agence de La Jarne

05 46 01 50 50

    * Champs obligatoires

    Vos informations sont traitées par HEXAOM et transmises à un conseiller commercial qui vous contactera afin de répondre à votre demande. Les plans et images présentés sur notre site sont la propriété d’HEXAOM et ne peuvent pas être reproduits sans son accord. Pour retrouver notre politique de protection des données personnelles et exercer vos droits conformément à la « loi informatique et liberté » cliquez-ici.