Maison neuve à
Vraiville (27370) Référence : AL1847019_4

Prix du projet : Maison avec Terrain

prix 225 000 €

  • 6 pièces
  • 4 chambres
  • Surface maison 100 m2

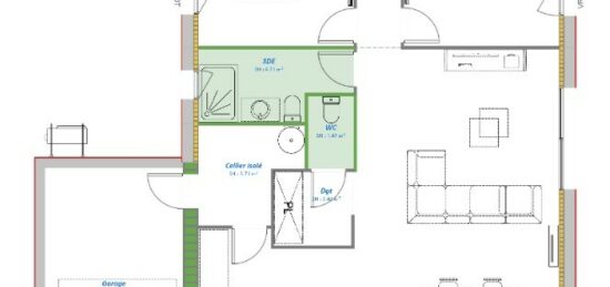
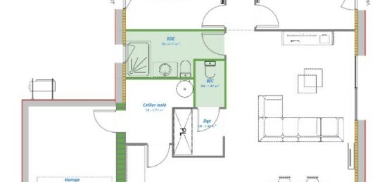
VENTE d'une maison T6 (100 m²) à Vraiville
PROCHE DE ROUEN - MAISON 6 PIÈCES NEUVE
En vente : découvrez cette maison de 6 pièces de 100 m² localisée à Vraiville (27370). Elle est composée de quatre chambres, d'une cuisine et d'une salle de bains.
Le terrain du bien est de 750 m².
Cette maison comporte 2 niveaux. Elle est neuve.
Une école primaire est implantée dans le quartier. Côté transports, on trouve la gare Elbeuf-Saint-Aubin à moins de 10 minutes en voiture. L'autoroute A154 est accessible à 10 km. Il y a une bibliothèque et un commerce à quelques minutes à peine.
Cette maison est à vendre pour la somme de 225 000 €.
Contactez notre agence immobilière Maisons france confort boos 02 35 80 66 62 / 06 25 94 93 74 pour obtenir de plus amples informations sur cette maison. Maisons France Confort Boos est là pour vous accompagner dans toutes vos démarches.
*Le prix ne comprend pas les aménagements intérieurs/extérieurs , les branchements,
les annexes et d'éventuelles modifications apportées par le client.

Annonce proposée par un Agent Commercial Partenaire.

Mentions légales

Terrain proposé par un partenaire foncier selon disponibilités et autorisation de publicité au prix de 55 000 €. Hors droit d'enregistrement et frais de notaire. Maison proposée, avec un contrat de construction de maison individuelle, dans le cadre de la loi du 19/12/1990, au prix de 170 000 € (Hors branchements et raccordements, papiers peints, peintures, revêtement de sol dans les chambres, qui sont chiffrés dans les travaux qui restent à charge du client. Tarif modifiable sans préavis). Étiquette énergie : A. Différents modèles disponibles pour ce terrain. Assurances et garanties du constructeur comprises (RC professionnelle, décennale, dommage ouvrage).

Contactez l'agence de Boos

02 35 80 66 62

    * Champs obligatoires

    Vos informations sont traitées par HEXAOM et transmises à un conseiller commercial qui vous contactera afin de répondre à votre demande. Les plans et images présentés sur notre site sont la propriété d’HEXAOM et ne peuvent pas être reproduits sans son accord. Pour retrouver notre politique de protection des données personnelles et exercer vos droits conformément à la « loi informatique et liberté » cliquez-ici.