Maison neuve à
Vulaines-sur-Seine (77870) Référence : IL2493027_1

Prix du projet : Maison avec Terrain

prix 360 000 €

  • 6 pièces
  • 5 chambres
  • Surface maison 114 m2

Vulaines-sur-Seine : maison de 6 pièces (114 m²) en vente
MAISON 6 PIÈCES NEUVE - PROCHE DE CORBEIL-ESSONNES
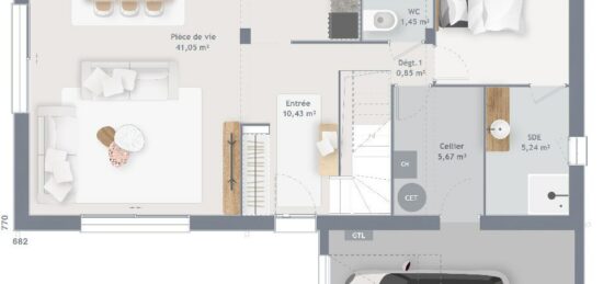
En vente : à deux pas de Corbeil-Essonnes, notre agence Maisons France Confort Mareuil-lès-Meaux est ravie de vous présenter cette maison de 6 pièces de 114 m² et de 380 m² de terrain à Vulaines-sur-Seine (77870). Son intérieur propose cinq chambres, une cuisine et deux salles de bains.
Il s'agit d'une maison de 2 niveaux. Elle est neuve.
Des écoles maternelles et élémentaires sont implantées à moins de 10 minutes à pied, tout comme, comme l'École Élémentaire les Orangers. Niveau transports, on trouve la gare Vulaines-sur-Seine-Samoreau dans un rayon de 1 km. Il y a une bibliothèque, plusieurs commerces, une boucherie-charcuterie et deux épiceries dans les environs.
Elle est proposée à l'achat pour 360 000 €.
Contactez notre agence (Ishane LASLEDJ : 06-68-91-18-74) pour obtenir de plus amples informations sur cette maison.

Annonce proposée par un Agent Commercial Partenaire.

Mentions légales

Terrain proposé par un partenaire foncier selon disponibilités et autorisation de publicité au prix de 134 000 €. Hors droit d'enregistrement et frais de notaire. Terrain + Maison proposés au prix de 360 000 € (Hors branchements et raccordements, papiers peints, peintures, revêtement de sol dans les chambres. Tarif modifiable sans préavis). Etiquette énergie : A. Différents modèles disponibles pour ce terrain. Assurances et garanties du constructeur (RC professionnelle, décennale, dommage ouvrage, garantie de remboursement de l'acompte, livraison à prix et délai convenu) : https://www.maisons-france-confort.fr/mentions-legales/. HEXAOM Services est enregistré auprès de l'ORIAS en tant que Courtier en financement, Niveau 1, sous le numéro 14001345.

Contactez l'agence de Mareuil-lès-Meaux

01 60 09 28 30

    * Champs obligatoires

    Vos informations sont traitées par HEXAOM et transmises à un conseiller commercial qui vous contactera afin de répondre à votre demande. Les plans et images présentés sur notre site sont la propriété d’HEXAOM et ne peuvent pas être reproduits sans son accord. Pour retrouver notre politique de protection des données personnelles et exercer vos droits conformément à la « loi informatique et liberté » cliquez-ici.