Maison neuve à
Wailly (62217) Référence : AC2400990_1

Prix du projet : Maison avec Terrain

prix 200 084 €

  • 4 pièces
  • 3 chambres
  • Surface maison 90 m2

VENTE d'une maison T4 (90 m²) à Wailly
EMPLACEMENT PRIVILÉGIÉ - MAISON 4 PIÈCES NEUVE
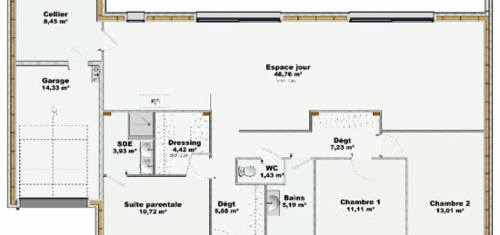
En vente : à quelques kilomètres de Douai, nous sommes heureux de vous présenter cette maison de 4 pièces de 90 m² et de 385 m² de terrain avec vue sur espace vert bénéficiant d'un emplacement d'exception dans Wailly (62217).
Il s'agit d'une maison de plain-pied. Elle dispose de trois chambres, d'une cuisine et d'une salle de bains. La maison est neuve.
Cette maison est située dans un secteur recherché. Il y a l'École Primaire Robert Doisneau à moins de 10 minutes à pied. Niveau transports en commun, on trouve trois gares (Boisleux-au-Mont, Arras et Maroeuil) à moins de 10 minutes en voiture. Les nationales N25 et N17 sont accessibles à moins de 10 km. Il y a deux commerces à quelques minutes.
Elle est à vendre pour la somme de 200 084 €.
N'hésitez pas à prendre contact avec notre agence (CARPENTIER Arnaud : 06-84-42-52-50) pour toute information sur la maison, sur les démarches à suivre ou sur les modalités de vente.

Mentions légales

Terrain proposé par un partenaire foncier selon disponibilités et autorisation de publicité au prix de 49 000 €. Hors droit d'enregistrement et frais de notaire. Terrain + Maison proposés au prix de 200 084 € (Hors branchements et raccordements, papiers peints, peintures, revêtement de sol dans les chambres. Tarif modifiable sans préavis). Etiquette énergie : A. Différents modèles disponibles pour ce terrain. Assurances et garanties du constructeur (RC professionnelle, décennale, dommage ouvrage, garantie de remboursement de l'acompte, livraison à prix et délai convenu) : https://www.maisons-france-confort.fr/mentions-legales/. HEXAOM Services est enregistré auprès de l'ORIAS en tant que Courtier en financement, Niveau 1, sous le numéro 14001345.

Contactez l'agence de Arras

03 21 60 95 24

    * Champs obligatoires

    Vos informations sont traitées par HEXAOM et transmises à un conseiller commercial qui vous contactera afin de répondre à votre demande. Les plans et images présentés sur notre site sont la propriété d’HEXAOM et ne peuvent pas être reproduits sans son accord. Pour retrouver notre politique de protection des données personnelles et exercer vos droits conformément à la « loi informatique et liberté » cliquez-ici.