Maison neuve à
Willerval
(62580) Référence :
AB2447952_5
Prix du projet : Maison avec Terrain
prix 334 584 €
- 5 pièces
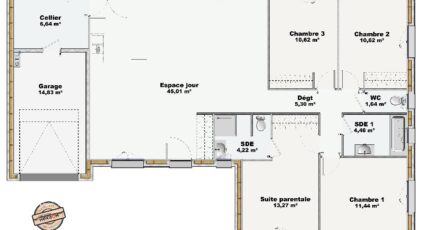
- 4 chambres
- Surface maison 113 m2
Maison de 5 pièces (113 m²) à vendre à Willerval
EMPLACEMENT PRIVILÉGIÉ - MAISON 5 PIÈCES NEUVE
À quelques kilomètres d'Arras et à deux pas d'Arras, nous vous présentons cette maison de 5 pièces de plain-pied de 113 m² et de 930 m² de terrain bénéficiant d'un emplacement d'exception dans Willerval (62580). Elle inclut quatre chambres, une cuisine et deux salles de bains.
La maison est neuve.
Elle se trouve dans un quartier convoité. Il y a l'École Élémentaire rpi 91 à moins de 10 minutes à pied. Côté transports en commun, on trouve la gare Farbus à quelques pas du bien. Il y a un commerce à quelques minutes à peine.
Elle est proposée à l'achat pour 334 584 €.
Prenez contact avec Alexis BAVENCOFFE (O6-42-16-85-46) pour tout renseignement sur cette maison, sur les démarches à suivre ou sur les modalités de vente. Maisons France Confort Arras vous accompagne à toutes les étapes de votre projet et dans tous vos projets immobiliers.
Mentions légales
Terrain proposé par un partenaire foncier selon disponibilités et autorisation de publicité au prix de 103 000 €. Hors droit d'enregistrement et frais de notaire. Terrain + Maison proposés au prix de 334 584 € (Hors branchements et raccordements, papiers peints, peintures, revêtement de sol dans les chambres. Tarif modifiable sans préavis). Etiquette énergie : A. Différents modèles disponibles pour ce terrain. Assurances et garanties du constructeur (RC professionnelle, décennale, dommage ouvrage, garantie de remboursement de l'acompte, livraison à prix et délai convenu) : https://www.maisons-france-confort.fr/mentions-legales/. HEXAOM Services est enregistré auprès de l'ORIAS en tant que Courtier en financement, Niveau 1, sous le numéro 14001345.Agence Maisons France Confort de Arras (62000)
- Téléphone :
- 03 21 60 95 24
- Adressse :
- 11 ter boulevard Schuman
62000 Arras, France
