Maison neuve à
Wittelsheim
(68310) Référence :
FB2417750_7
Prix du projet : Maison avec Terrain
prix 376 881 €
- 4 pièces
- 4 chambres
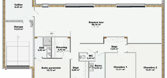
- Surface maison 118 m2
VENTE - Maison 4 pièces de 118 m² à Wittelsheim (68310)
Emplacement privilégié - Maison neuve
À Wittelsheim, dans un quartier résidentiel recherché, à seulement 8 km de Mulhouse et à moins de 35 km de l'Allemagne et de la Suisse, Maisons Brand Mulhouse vous propose cette maison neuve de 118 m², offrant de beaux volumes et un excellent confort de vie.
Édifiée sur un terrain de 444 m², cette maison est élevée sur deux niveaux et bénéficie d'un agencement fonctionnel, parfaitement adapté à une vie de famille.
Elle se compose de :
Quatre chambres, idéales pour une famille ou un espace bureau
Une pièce de vie lumineuse avec espace cuisine
Deux salles de bains, apportant un confort supplémentaire au quotidien
Des volumes généreux et bien répartis
Située dans un environnement pratique et convivial, la maison profite de la proximité immédiate de nombreux services :
Écoles maternelles, primaires, collège et lycée accessibles à moins de 10 minutes à pied
Commerces et services de proximité : supermarché, bibliothèque, boulangeries, boucheries-charcuteries, bureau de poste
Marché hebdomadaire Place de Gaulle chaque jeudi matin
💰 Prix de vente : 376 881 € (maison + terrain)
📞 Pour toute information complémentaire, étude personnalisée ou modalités de vente, contactez :
François BUCHWALTER - 06 42 62 67 64
Mentions légales
Terrain proposé par un partenaire foncier selon disponibilités et autorisation de publicité au prix de 104 782 €. Hors droit d'enregistrement et frais de notaire. Terrain + Maison proposés au prix de 376 881 € (Hors branchements et raccordements, papiers peints, peintures, revêtement de sol dans les chambres. Tarif modifiable sans préavis). Etiquette énergie : A. Différents modèles disponibles pour ce terrain. Assurances et garanties du constructeur (RC professionnelle, décennale, dommage ouvrage, garantie de remboursement de l'acompte, livraison à prix et délai convenu) : https://www.maisonsbrand.fr/informations-legales/.Agence BRAND Maisons Individuelles de Mulhouse (68100)
- Téléphone :
- 03 89 41 28 88
- Adressse :
- 62 rue Jacques Mugnier
68100 Mulhouse, France
