Maison neuve à
Ychoux
(40160) Référence :
LC600Ychoux_5
Prix du projet : Maison avec Terrain
prix 315 000 €
- 4 pièces
- 3 chambres
- Surface maison 125 m2
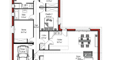
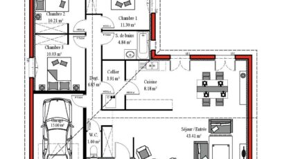
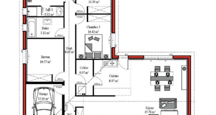
Maison de 4 pièces (125 m²) en vente à Ychoux
MAISON 4 PIÈCES NEUVE
En vente : à quelques minutes de la gare, à Ychoux (40160), nous vous proposons cette maison de 4 pièces de plain-pied de 125 m². Conçue de plain-pied, elle comporte trois chambres, une cuisine et une salle de bains.
Le terrain de cette maison s'étend sur 700 m².
La maison est neuve.
L'océan Atlantique se trouve à 35,99 km. Une école maternelle est implantée dans le quartier. Côté transports, il y a la gare Ychoux à moins de 10 minutes à pied. Il y a un accès à l'autoroute A63 à 6 km. On trouve un tennis, un supermarché, une boulangerie et un bureau de poste à quelques minutes.
Le prix de vente de cette maison est de 315 000 €.
Contactez Laurent CHAMPEIL (05-57-15-12-37) pour toute information sur la maison, sur les modalités de vente et sur les démarches à suivre.
Mentions légales
Idée de réalisation en modèle prêt à décorer sur l’un de nos terrains partenaires, sous réserve de disponibilités. Voir détails en agence.Agence Batisoft de La Teste-de-Buch (33260)
- Téléphone :
- 05 57 15 12 37
- Adressse :
- 27, Boulevard de Cazaux
33260 La Teste-de-Buch, France
