Maison neuve à
Andernos-les-Bains
(33510) Référence :
AF2395280
Prix du projet : Maison avec Terrain
prix 730 200 €
- 5 pièces
- 4 chambres
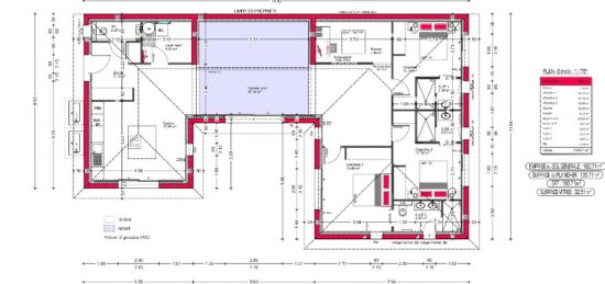
- Surface maison 132 m2
Situé à Andernos-les-Bains, dans un quartier très calme et recherché, à seulement 15 minutes à pied de la plage et du centre-ville, ce projet de construction vous propose une maison arcachonnaise élégante et fonctionnelle, parfaitement intégrée dans un environnement privilégié côté bassin.
Implantée sur un terrain de 650 m², cette maison développe 132 m² habitables et séduit par son architecture typique du bassin d'Arcachon, revisitée dans un esprit contemporain. L'étage partiel permet une organisation fluide des espaces, tandis que les plafonds rampants apportent volume et luminosité à la pièce de vie.
La maison offre quatre chambres, dont une suite parentale, idéale pour une vie de famille confortable. Une terrasse couverte prolonge naturellement les espaces de vie vers l'extérieur et permet de profiter pleinement du jardin. Un garage de 30 m² vient compléter ce projet, apportant praticité et espace de rangement.
Un projet harmonieux, alliant charme arcachonnais, confort moderne et emplacement recherché, dans un secteur paisible à proximité immédiate des commodités et du bassin.
Contactez Alexis FAUCHON au O7.87.0O.29.55 pour plus d'informations.
Mentions légales
Terrain proposé par un partenaire foncier selon disponibilité dans le cadre d’un projet de construction avec Couleur Villas. Les descriptions, photographies, surfaces et prix illustrant l’annonce sont fournies à titre indicatif et ne sont pas contractuels. Non soumis au DPE. Différents modèles disponibles.Agence Couleur Villas de Andernos-les-Bains (33510)
- Téléphone :
- 05 56 07 00 00
- Adressse :
- 7 Avenue de Taussat
33510 Andernos-les-Bains, France