Maison neuve à
Andernos-les-Bains (33510) Référence : AF2395522

Prix du projet : Maison avec Terrain

prix 450 000 €

  • 4 pièces
  • 3 chambres
  • Surface maison 100 m2

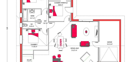
Située à Andernos-les-Bains dans un emplacement stratégique, à deux pas du centre et des plages, cette maison de plain-pied neuve de 100 m² se déploie sur un terrain clos et arboré de 500 m², entièrement optimisé et prêt à vivre.

Conçue pour une vie sans étage, elle mise sur une architecture épurée, des volumes aérés et des matériaux choisis avec soin, pour une intégration douce et naturelle dans son environnement.

L'intérieur offre une luminosité généreuse, une circulation fluide et un confort immédiat : trois chambres spacieuses dont une belle suite parentale avec sa propre salle d'eau, ainsi qu'un garage attenant parfaitement intégré.

Tout est pensé pour poser ses valises sans attendre : finitions soignées, optimisation maximale de l'espace et connexion directe avec le jardin.

Contactez Alexis FAUCHON au O7.87.0O.29.55 pour plus d'informations.

Mentions légales

Terrain proposé par un partenaire foncier selon disponibilité dans le cadre d’un projet de construction avec Couleur Villas. Les descriptions, photographies, surfaces et prix illustrant l’annonce sont fournies à titre indicatif et ne sont pas contractuels. Non soumis au DPE. Différents modèles disponibles.

Contactez l'agence de Andernos-les-Bains

05 56 07 00 00

    * Champs obligatoires

    Vos informations sont traitées par HEXAOM et transmises à un conseiller commercial qui vous contactera afin de répondre à votre demande. Les plans et images présentés sur notre site sont la propriété d’HEXAOM et ne peuvent pas être reproduits sans son accord. Pour retrouver notre politique de protection des données personnelles et exercer vos droits conformément à la « loi informatique et liberté » cliquez-ici.