Maison neuve à
Ars-Laquenexy (57530) Référence : AL2260892

Prix du projet : Maison avec Terrain

prix 459 000 €

  • 6 pièces
  • 5 chambres
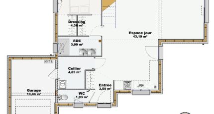
  • Surface maison 114 m2

Maison en BOIS de 6 pièces (114 m²) en vente à Ars-Laquenexy
IDÉALEMENT SITUÉE - MAISON 6 PIÈCES NEUVE
À quelques kilomètres de l'Allemagne et du Luxembourg et à 6 km de Metz, nous sommes heureux de vous proposer cette maison de 6 pièces de 114 m² avec vue sur espace vert idéalement située dans Ars-Laquenexy (57530).
Cette maison possède 2 niveaux. Son intérieur propose cinq chambres, une cuisine et deux salles de bains. La maison est neuve. Projet modulable en fonction de vos besoins, isolé extérieur, menuiseries ALU..
Le terrain de la propriété est de 629 m².
Elle se trouve dans un quartier prisé. Des établissements scolaires primaires y sont implantés. Niveau transports, il y a cinq gares à moins de 10 minutes en voiture. Les autoroutes A315, A314 et A31 et la nationale N431 sont accessibles à moins de 8 km.
Son prix de vente est de 459 000 €.
Contactez notre agence (Anthony LEONARDI : 03-87-55-10-23) pour toute information sur la maison, sur les démarches à suivre ou sur les modalités de vente.

Mentions légales

Terrain proposé par un partenaire foncier selon disponibilités et autorisation de publicité au prix de €. Hors droit d'enregistrement et frais de notaire. Terrain + Maison proposés au prix de 459 000 € (Hors branchements et raccordements, papiers peints, peintures, revêtement de sol dans les chambres. Tarif modifiable sans préavis). Etiquette énergie : A. Différents modèles disponibles pour ce terrain. Assurances et garanties du constructeur (RC professionnelle, décennale, dommage ouvrage, garantie de remboursement de l'acompte, livraison à prix et délai convenu) : https://www.maisonshorizon.fr/mentions-legales/.

Contactez l'agence de Metz

03 87 55 10 23

    * Champs obligatoires

    Vos informations sont traitées par HEXAOM et transmises à un conseiller commercial qui vous contactera afin de répondre à votre demande. Les plans et images présentés sur notre site sont la propriété d’HEXAOM et ne peuvent pas être reproduits sans son accord. Pour retrouver notre politique de protection des données personnelles et exercer vos droits conformément à la « loi informatique et liberté » cliquez-ici.