Maison neuve à
Boullay-les-Troux (91470) Référence : FL2477404

Prix du projet : Maison avec Terrain

prix 626 000 €

  • 6 pièces
  • 4 chambres
  • Surface maison 142 m2

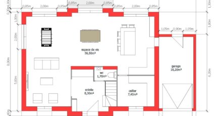
Dans un village de charme situé dans le Parc de la Vallée de Chevreuse sur la commune de Boullay les Troux, à 10 minutes du RER B de Saint Rémy les Chevreuse, venez découvrir cette maison familiale de 151m² habitable aux volumes généreux, implantée sur un beau terrain plat de 517m², exposé plein Sud.
Vous profiterez d'un bel espace de vie de 56m², avec une cuisine ouverte donnant sur un cellier et garage. L'étage offre trois belles chambres (dont une avec dressing) et un bureau (chambre d'amis) avec vue sur le jardin.
Maison disposant des nouvelles réglementations RE 2020 et certifiée NF Habitat HQE.
Renseignez-vous auprès de Fabien LAROYE au 06/61/52/02/68/

Annonce proposée par un Agent Commercial Partenaire.

Mentions légales

Terrain proposé par un partenaire foncier selon disponibilités et autorisation de publicité au prix de €. Hors droit d'enregistrement et frais de notaire. Terrain + Maison proposés au prix de 626 000 € (Hors branchements et raccordements, papiers peints, peintures, revêtement de sol dans les chambres. Tarif modifiable sans préavis). Etiquette énergie : A. Différents modèles disponibles pour ce terrain. Assurances et garanties du constructeur (RC professionnelle, décennale, dommage ouvrage, garantie de remboursement de l'acompte, livraison à prix et délai convenu) : https://www.maisonsberval.fr/mentions-legales/.

Contactez l'agence de Rambouillet

06 61 52 02 68

    * Champs obligatoires

    Vos informations sont traitées par HEXAOM et transmises à un conseiller commercial qui vous contactera afin de répondre à votre demande. Les plans et images présentés sur notre site sont la propriété d’HEXAOM et ne peuvent pas être reproduits sans son accord. Pour retrouver notre politique de protection des données personnelles et exercer vos droits conformément à la « loi informatique et liberté » cliquez-ici.