Maison neuve à
Brive-la-Gaillarde (19100) Référence : MM2471655_1

Prix du projet : Maison avec Terrain

prix 360 000 €

  • 4 pièces
  • 3 chambres
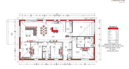
  • Surface maison 138 m2

Projet de construction - Maison 138 m² + Terrain - Brive (19)

Emplacement idéal - Maison moderne et ultra confortable

Dans le cadre d'un projet de construction, nous vous proposons un superbe terrain avec maison situé sur les hauteurs de Brive la Gaillarde.

Situation exceptionnelle :
Un des derniers terrains disponibles sur le secteur, dans un quartier calme et paisible proche néanmoins des axes routiers et du centre ville.

La maison : 138 m² de confort, de lumière et de modernité

Une architecture en 4 pans, pensée pour éliminer toute perte d'espace et offrir un plan fonctionnel et ultra agréable.

Espace jour :
- Grand garage donnant sur un cellier pratique
- Entrée avec grand placard + WC indépendant
- Très grande pièce de vie lumineuse
- Cuisine ouverte sur un vaste salon-séjour

Terrasse en prolongement du séjour : un vrai bonheur pour profiter du cadre paisible de cette région.

Espace nuit 1 (côté famille)
- Un bureau ouvert donnant sur le salon
- 2 belles chambres
- Une grande salle de bain équipée : double vasque, douche italienne + baignoire
- Espace nuit pensé pour le calme et la praticité

Suite parentale (à l'opposé pour plus d'intimité)
- Très grande chambre
- Grand dressing
- Salle d'eau avec double vasque, WC et grande douche italienne

Un espace entièrement dédié au confort et à la tranquillité.

Pourquoi ce projet est un vrai coup de coeur :
- Maison moderne, lumineuse, très bien pensée
- Volumes efficaces, aucune perte d'espace
- Emplacement top au coeur quartier calme

Secteur recherché et parfait pour une vie paisible avec un plan confortable, élégant et pratique au quotidien !

Appelez Marie MUNOZ au 06 71 63 16 59 pour en savoir plus ou pour organiser une rencontre.

Mentions légales

Terrain proposé par un partenaire foncier selon disponibilité dans le cadre d’un projet de construction avec Alpha Constructions. Les descriptions, photographies, surfaces et prix illustrant l’annonce sont fournies à titre indicatif et ne sont pas contractuels. Non soumis au DPE. Différents modèles disponibles.

Contactez l'agence de Brive-la-Gaillarde

05 55 23 02 47

    * Champs obligatoires

    Vos informations sont traitées par HEXAOM et transmises à un conseiller commercial qui vous contactera afin de répondre à votre demande. Les plans et images présentés sur notre site sont la propriété d’HEXAOM et ne peuvent pas être reproduits sans son accord. Pour retrouver notre politique de protection des données personnelles et exercer vos droits conformément à la « loi informatique et liberté » cliquez-ici.