Maison neuve à
Châteaubernard (16100) Référence : TD2426829_1

Prix du projet : Maison avec Terrain

prix 575 285 €

  • 5 pièces
  • 4 chambres
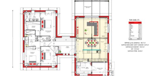
  • Surface maison 198 m2

Alpha Constructions vous propose cette belle maison contemporaine de 198m² située dans un quartier résidentiel prisé de Châteaubernard, à proximité de Cognac. Cette maison allie volumes généreux, confort moderne et prestations haut de gamme.
Edifiées sur un demi étage, cette propriété séduit par son architecture élégante et sa luminosité exceptionnelle.
L'espace de vie principal, vaste et harmonieux, s'ouvre sur une belle terrasse et un jardin paysager idéalement orienté, parfait pour profiter des beaux jours en toute intimité.
La maison dispose de quatre chambres spacieuses, dont une suite parentale avec dressing et salle d'eau ainsi que d'une seconde salle de bain à l'étage. Une grande pièce de vie spacieuse et lumineuse, cellier, garage et carport...
Prestations et matériaux de qualités, RE2020, mode de chauffage économique et performant. PLAN MODULABLE.
Contactez notre agence Alpha Constructions Cognac (Tony DAIGRE O6 15 20 16 38) pour plus de renseignements.

Mentions légales

Terrain proposé par un partenaire foncier selon disponibilité dans le cadre d’un projet de construction avec Alpha Constructions. Les descriptions, photographies, surfaces et prix illustrant l’annonce sont fournies à titre indicatif et ne sont pas contractuels. Non soumis au DPE. Différents modèles disponibles.

Contactez l'agence de Cognac

05 17 22 82 53

    * Champs obligatoires

    Vos informations sont traitées par HEXAOM et transmises à un conseiller commercial qui vous contactera afin de répondre à votre demande. Les plans et images présentés sur notre site sont la propriété d’HEXAOM et ne peuvent pas être reproduits sans son accord. Pour retrouver notre politique de protection des données personnelles et exercer vos droits conformément à la « loi informatique et liberté » cliquez-ici.