Maison neuve à
Gujan-Mestras (33470) Référence : LT2325193

Prix du projet : Maison avec Terrain

prix 876 000 €

  • 5 pièces
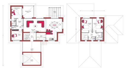
  • 4 chambres
  • Surface maison 122 m2

Villa à bâtir style Basco-Landais - Gujan-Mestras (quartier La hume) - 876 000 €

Laissez-vous séduire par le charme intemporel de cette villa à bâtir de style Basco-Landais, mêlant authenticité et modernité, située dans le quartier très recherché de La hume à Gujan-Mestras, au calme et à proximité de toutes les commodités.

D'une surface habitable de plus de 120 m², cette maison au caractère affirmé se compose d'une belle pièce de vie lumineuse, de quatre chambres, d'un garage attenant et d'une superbe terrasse couverte, parfaite pour profiter des belles journées sur le Bassin.

Implantée sur un terrain d'environ 650 m², cette villa offre un cadre de vie privilégié, idéal en résidence principale ou secondaire.

Un projet alliant élégance architecturale, confort moderne et emplacement d'exception.

👉 Prix global : 876 000 € (terrain + maison, hors frais de notaire et taxes annexes)
Vous pouvez nous contacter au O7 68 95 14 02 (Laurent Travert)

Mentions légales

Terrain proposé par un partenaire foncier selon disponibilité dans le cadre d’un projet de construction avec Couleur Villas. Les descriptions, photographies, surfaces et prix illustrant l’annonce sont fournies à titre indicatif et ne sont pas contractuels. Non soumis au DPE. Différents modèles disponibles.

Contactez l'agence de La Teste-de-Buch

05 56 22 96 76

    * Champs obligatoires

    Vos informations sont traitées par HEXAOM et transmises à un conseiller commercial qui vous contactera afin de répondre à votre demande. Les plans et images présentés sur notre site sont la propriété d’HEXAOM et ne peuvent pas être reproduits sans son accord. Pour retrouver notre politique de protection des données personnelles et exercer vos droits conformément à la « loi informatique et liberté » cliquez-ici.