Maison neuve à
Hardricourt (78250) Référence : SB1441572

Prix du projet : Maison avec Terrain

prix 510 000 €

  • 5 pièces
  • 3 chambres
  • Surface maison 137 m2

À Hardricourt (78), grande maison avec 5 pièces en vente
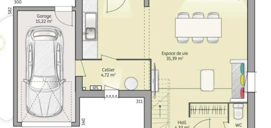
À Hardricourt (78), changer de logement pour acheter une maison sur plan T5. Le modèle de maison qui vous est présenté est Champ de Mars 137. Maison au design épuré avec une grande terrasse sur le toit. La proximité avec Les Mureaux, située à 5 minutes, est un atout. La maison complètement neuve comporte 3 chambres, une salle d'eau et un espace cuisine. Pour loger votre famille avec un réel bien-être, le grand nombre de salles de bain préservera l'intimité des grands et des petits. La superficie plancher intérieure habitable mesure à peu près 137m2. Dehors, la maison s'accompagne d'un jardin pour manger dehors. Elle donne accès à un garage pour abriter votre voiture. Il se peut que ce terrain pour construire votre logement réponde aux critères d'une aide financière (prêt PTZ). Contactez dès à présent Sandrine BECOURT de Maisons Berval Le Vésinet pour en savoir plus. Chaque membre de la famille y trouvera son espace privatif.
Ce terrain nous est proposé par un partenaire foncier, sous réserve de disponibilité. Maisons Berval est un constructeur Premium faisant du sur-mesure et le seul constructeur certifié NF-HQE, PROPERMEA, en île de France.

Mentions légales

Les annonces de terrains constructibles sont sélectionnées auprès de nos partenaires fonciers. Ces derniers sont soit des professionnels dûment habilités à la transaction immobilière, soit des particuliers. Terrains, selon disponibilité, pour la construction de maisons neuves, avec un contrat de construction de maison individuelle, dans le cadre de la loi du 19/12/1990. Les terrains sélectionnés sont disponibles à la date de la première parution de l’annonce. En aucun cas Maisons Berval ou ses collaborateurs ne sont propriétaires des terrains , ne jouent un rôle d’intermédiation ou de négociation sur la transaction et ne participent à la vente. Prix indiqués par nos partenaires fonciers.

Contactez l'agence de Rambouillet

06 61 52 02 68

    * Champs obligatoires

    Vos informations sont traitées par HEXAOM et transmises à un conseiller commercial qui vous contactera afin de répondre à votre demande. Les plans et images présentés sur notre site sont la propriété d’HEXAOM et ne peuvent pas être reproduits sans son accord. Pour retrouver notre politique de protection des données personnelles et exercer vos droits conformément à la « loi informatique et liberté » cliquez-ici.