Maison neuve à
La Bastide-Clairence
(64240) Référence :
EP2480687
Prix du projet : Maison avec Terrain
prix 316 700 €
- 4 pièces
- 3 chambres
- Surface maison 90 m2
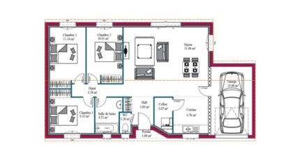
Émilie PINEAU des Maisons MCA à Anglet vous propose d'adapter le modèle Optima, sur ce joli terrain d'environ 600m², situé sur la commune de La Bastide Clairence, aux portes de Bayonne.
Cette maison possède un grand salon-séjour tourné vers le jardin, une cuisine ouverte avec son cellier attenant, ce qui offre un espace jour de plus de 41m2. Le coté nuit est composé de 3 chambres avec placards, une salle de bains et wc séparés. Un garage communiquant de 15 m2 vient compléter ce bel ensemble.
Ce modèle saura vous plaire grâce à son agencement idéalement pensé pour votre confort de vie, et l'optimisation des espaces.
Le prix affiché comprend le terrain, les frais annexes (raccordements, bornage), et cette maison livrée prête à décorer (prévoir peinture et cuisine).
Contactez vite votre conseillère Émilie PINEAU à l'agence MCA d'Anglet, afin qu'elle vous guide dans les démarches et vous accompagne dans ce projet de construction personnalisé.
Mentions légales
Idée de réalisation en modèle prêt à décorer sur l'un de nos terrains partenaires, sous réserve de disponibilités. Voir détails en agence.Agence Maisons de la Côte Atlantique de Anglet (64600)
- Téléphone :
- 05 35 37 13 55
- Adressse :
- 11 allée d'Orion
64600 Anglet, France
