Maison neuve à
Ludon-Médoc (33290) Référence : TM2393425

Prix du projet : Maison avec Terrain

prix 369 000 €

  • 4 pièces
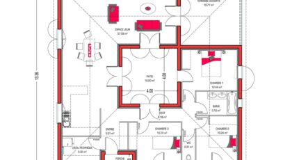
  • 3 chambres
  • Surface maison 115 m2

venez découvrir ce joli projet de construction sur la commune de Ludon Médoc. idéalement situé, à proximité de tous les commerces, écoles et transports et du stade
située au calme et sans vis a vis, ce terrain piscinable est fait pour vous.
la maison de 3 chambres proposée est personnalisable à souhaits et bénéficie de prestations haut de gamme.
N'hésitez pas à prendre contact avec notre agence (MICHEL Thomas : 06-56-66-13-19) pour toute question sur la maison. Couleur Villas Villenave-d'Ornon est là pour vous accompagner dans toutes vos démarches

Mentions légales

Terrain proposé par un partenaire foncier selon disponibilité dans le cadre d’un projet de construction avec Couleur Villas. Les descriptions, photographies, surfaces et prix illustrant l’annonce sont fournies à titre indicatif et ne sont pas contractuels. Non soumis au DPE. Différents modèles disponibles.

Contactez l'agence de Villenave-d'Ornon

05 56 07 00 00

    * Champs obligatoires

    Vos informations sont traitées par HEXAOM et transmises à un conseiller commercial qui vous contactera afin de répondre à votre demande. Les plans et images présentés sur notre site sont la propriété d’HEXAOM et ne peuvent pas être reproduits sans son accord. Pour retrouver notre politique de protection des données personnelles et exercer vos droits conformément à la « loi informatique et liberté » cliquez-ici.