Maison neuve à
Ludon-Médoc (33290) Référence : TM2423665

Prix du projet : Maison avec Terrain

prix 540 000 €

  • 5 pièces
  • 3 chambres
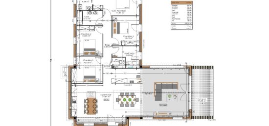
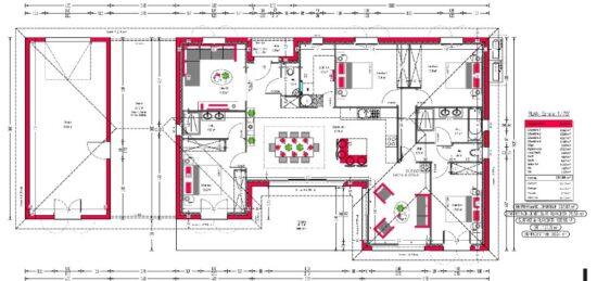
  • Surface maison 231 m2

EMPLACEMENT PRIVILÉGIÉ - MAISON 4 PIÈCES NEUVE à proximité du centre et des commerces
En vente, projet de construction a deux pas du centre et des écoles, nous sommes ravis de vous présenter cette maison de 4 pièces de plain-pied de 230 m² et de 550 m² de terrain bénéficiant d'un emplacement privilégié dans la commune de ludon médoc
Son intérieur comporte trois chambres, une cuisine ouverte, un wc séparé et une salle de bains.
La maison se situe dans un quartier recherché. Niveau transports en commun, il y a tout ce dont vous avez besoin a proximité.
la maison est personnalisable à souhaits et vous bénéficiez de prestations haut de gamme.
la parcelle est viabilisée
Elle est proposée à l'achat pour 410 000 €.
Prenez contact avec notre agence (MICHEL Thomas : O6-56-66-13-19) pour toute question sur le bien, sur les démarches à suivre ou sur les modalités de vente. Faites de vos projets immobiliers une réalité avec Couleur Villas Villenave-d'Ornon.

Mentions légales

Terrain proposé par un partenaire foncier selon disponibilité dans le cadre d’un projet de construction avec Couleur Villas. Les descriptions, photographies, surfaces et prix illustrant l’annonce sont fournies à titre indicatif et ne sont pas contractuels. Non soumis au DPE. Différents modèles disponibles.

Contactez l'agence de Villenave-d'Ornon

05 56 07 00 00

    * Champs obligatoires

    Vos informations sont traitées par HEXAOM et transmises à un conseiller commercial qui vous contactera afin de répondre à votre demande. Les plans et images présentés sur notre site sont la propriété d’HEXAOM et ne peuvent pas être reproduits sans son accord. Pour retrouver notre politique de protection des données personnelles et exercer vos droits conformément à la « loi informatique et liberté » cliquez-ici.