Maison neuve à
Mézy-sur-Seine (78250) Référence : SB1441464

Prix du projet : Maison avec Terrain

prix 520 000 €

  • 5 pièces
  • 3 chambres
  • Surface maison 137 m2

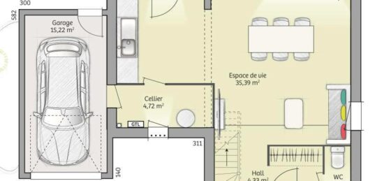
Maison avec 3 chambres à acheter à Mézy-Sur-Seine
Changer de logement pour acheter cette maison complètement neuve de type F5 dans la commune de Mézy-Sur-Seine dans le département des Yvelines. Le modèle de maison présenté sur le terrain est Champ de Mars 137. Maison au design épuré à toit terrasse. À 4 km se trouve Les Mureaux. L'intérieur mesure 137m2 et se constitue de 3 chambres, un espace cuisine et une salle d'eau. Point important, l'ensemble de ses 2 salles de bain sont particulièrement pratiques. Dehors, la maison s'accompagne d'un jardin. Elle vous fait bénéficier d'un garage privatif pour garantir la sécurité de votre voiture. Parlez-en à votre banque car, sous certaines conditions, l'acquisition de ce logement pourra être favorisée par une aide financière (prêt PTZ). Si cette habitation a retenu votre attention, vous pouvez contacter votre conseiller en construction. Bon choix pour une famille.
Ce terrain nous est proposé par un partenaire foncier, sous réserve de disponibilité. Maisons Berval est un constructeur Premium faisant du sur-mesure et le seul constructeur certifié NF-HQE, PROPERMEA, en île de France.

Mentions légales

Les annonces de terrains constructibles sont sélectionnées auprès de nos partenaires fonciers. Ces derniers sont soit des professionnels dûment habilités à la transaction immobilière, soit des particuliers. Terrains, selon disponibilité, pour la construction de maisons neuves, avec un contrat de construction de maison individuelle, dans le cadre de la loi du 19/12/1990. Les terrains sélectionnés sont disponibles à la date de la première parution de l’annonce. En aucun cas Maisons Berval ou ses collaborateurs ne sont propriétaires des terrains , ne jouent un rôle d’intermédiation ou de négociation sur la transaction et ne participent à la vente. Prix indiqués par nos partenaires fonciers.