Maison neuve à
Moliets-et-Maa (40660) Référence : NP2481611_1

Prix du projet : Maison avec Terrain

prix 448 000 €

  • 5 pièces
  • 3 chambres
  • Surface maison 107 m2

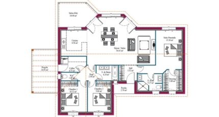
Nathalie PENICAUT des maisons MCA Soustons, vous propose d'adapter le modèle Lumière, sur ce beau terrain d'environ 570m2, idéalement situé sur la commune de Moliets et Maa.

Cette maison contemporaine est composée d'un vaste salon prolongé par une cuisine ouverte, vous profiterez donc d'un espace de vie de plus de 45m². Grâce aux nombreuses baies vitrées, le séjour est très lumineux et donne directement sur le jardin et la terrasse couverte.
Elle dispose également d'un espace nuit composé de deux chambres et une salle de bains, et à l'écart, une grande suite parentale de plus de 25 m², composée d'un dressing et d'une salle d'eau indépendante.

Vous serez séduits par le grand et lumineux espace de vie, et la suite parentale indépendante.

Le prix affiché comprend le terrain, les frais de notaire, les frais annexes (raccordements, bornage), et cette maison livrée prête à décorer.

Ne tardez pas, dernière opportunité sur le secteur, contactez Nathalie PENICAUT à l'agence MCA de Soustons, afin qu'elle vous guide dans les démarches et vous accompagne dans ce projet de construction personnalisé, aux normes RE2020.

Mentions légales

Idée de réalisation en modèle prêt à décorer sur l'un de nos terrains partenaires, sous réserve de disponibilités. Voir détails en agence.

Contactez l'agence de Soustons

05 33 04 08 40

    * Champs obligatoires

    Vos informations sont traitées par HEXAOM et transmises à un conseiller commercial qui vous contactera afin de répondre à votre demande. Les plans et images présentés sur notre site sont la propriété d’HEXAOM et ne peuvent pas être reproduits sans son accord. Pour retrouver notre politique de protection des données personnelles et exercer vos droits conformément à la « loi informatique et liberté » cliquez-ici.