Maison neuve à
Mouguerre (64990) Référence : CB2312925

Prix du projet : Maison avec Terrain

prix 406 578 €

  • 3 pièces
  • 2 chambres
  • Surface maison 90 m2

Très bel emplacement avec vue dégagée en hauteur pour ce projet de maison:
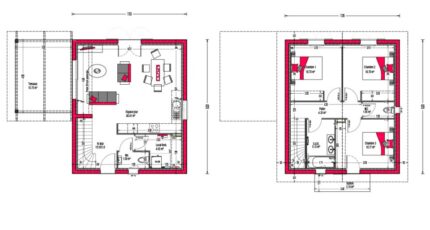
Découvrez cette maison à étage au style basque, modulable selon vos envies et vos goûts.
Elle se compose de : Trois belles chambres à l'étage,
Une spacieuse pièce de vie lumineuse,
Et une agréable terrasse couverte pour profiter des beaux jours.

N'hésitez pas à convenir d'un rendez-vous personnalisé avec votre conseillère, Mme Christine Baudoin au (O6-87-14-38-67)
pour une étude adaptée à votre projet.

Mentions légales

Terrain proposé par un partenaire foncier selon disponibilité dans le cadre d’un projet de construction avec Couleur Villas. Les descriptions, photographies, surfaces et prix illustrant l’annonce sont fournies à titre indicatif et ne sont pas contractuels. Non soumis au DPE. Différents modèles disponibles.

Contactez l'agence de Bayonne

05 59 25 04 24

    * Champs obligatoires

    Vos informations sont traitées par HEXAOM et transmises à un conseiller commercial qui vous contactera afin de répondre à votre demande. Les plans et images présentés sur notre site sont la propriété d’HEXAOM et ne peuvent pas être reproduits sans son accord. Pour retrouver notre politique de protection des données personnelles et exercer vos droits conformément à la « loi informatique et liberté » cliquez-ici.