Maison neuve à
Noailles (19600) Référence : TJC2467734

Prix du projet : Maison avec Terrain

prix 280 000 €

  • 4 pièces
  • 3 chambres
  • Surface maison 100 m2

Et si vous arrêtiez d'acheter un bien qui ne vous ressemble pas... pour créer celui qui vous correspond vraiment ?

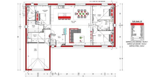
Nous vous présentons ici un exemple de projet de construction réalisable à Noailles : une maison neuve de 100 m² avec 3 chambres dont une suite parentale, bureau, cellier, une terrasse portée et un vide sanitaire accessible. Le tout pensé pour allier confort moderne, performance énergétique et valorisation patrimoniale.

Un projet 100 % sur-mesure. Ce modèle est une base d'inspiration.
Chez nous, chaque client choisit :
L'emplacement de son projet
La surface et l'agencement
Le nombre de chambres
Les prestations et équipements

Vous imaginez votre maison... nous la construisons.
Contrairement à l'ancien, aucun compromis : pas de travaux, pas de pièces mal agencées, pas de rénovations imprévues. Tout est pensé selon votre mode de vie.

Les avantages du neuf :
Normes RE2020 - fortes économies d'énergie
Frais de notaire réduits
Confort thermique et acoustique optimal
Matériaux modernes et durables
Domotique et équipements actuels possibles

Étude personnalisée gratuite et sans engagement.
Choisissez où vivre, choisissez comment vivre... et construisons-le ensemble

Contactez Thibault JUILLARD CONDAT O6 76 21 35 17 pour étudier votre projet de construction réalisable. Alpha Constructions Brive-la-Gaillarde vous accompagne de A à Z dans la concrétisation de votre projet immobilier.

Mentions légales

Terrain proposé par un partenaire foncier selon disponibilité dans le cadre d’un projet de construction avec Alpha Constructions. Les descriptions, photographies, surfaces et prix illustrant l’annonce sont fournies à titre indicatif et ne sont pas contractuels. Non soumis au DPE. Différents modèles disponibles.

Contactez l'agence de Brive-la-Gaillarde

05 55 23 02 47

    * Champs obligatoires

    Vos informations sont traitées par HEXAOM et transmises à un conseiller commercial qui vous contactera afin de répondre à votre demande. Les plans et images présentés sur notre site sont la propriété d’HEXAOM et ne peuvent pas être reproduits sans son accord. Pour retrouver notre politique de protection des données personnelles et exercer vos droits conformément à la « loi informatique et liberté » cliquez-ici.