Maison neuve à
Port-de-Lanne
(40300) Référence :
EP2480681
Prix du projet : Maison avec Terrain
prix 285 800 €
- 4 pièces
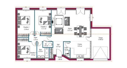
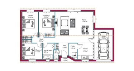
- 3 chambres
- Surface maison 85 m2
Emilie PINEAU des Maisons MCA à Anglet, vous propose d'adapter le modèle Optima 85 m2, sur ce joli terrain d'environ 600m², situé sur la commune de Port de Lanne à seulement 30 min de Bayonne.
Cette maison possède un grand salon-séjour tourné vers le jardin, une cuisine ouverte avec son cellier attenant, ce qui offre un espace jour de près de 38m2, le coté nuit est composé de 3 chambres avec placards, une salle de bains et wc séparés.
Ce modèle saura vous plaire grâce à son agencement idéalement pensé pour votre confort de vie, et l'optimisation des espaces.
Le prix affiché comprend le terrain, les frais annexes (raccordements, bornage), et cette maison (prévoir les sols, sanitaires, peinture et cuisine).
Ce projet reste personnalisable, en modifiant l'agencement du plan et dans le choix des prestations (carrelage, faïences, menuiseries, système de chauffage...)
Contactez vite votre conseillère Émilie PINEAU à l'agence MCA d'Anglet, afin qu'elle vous guide dans les démarches et vous accompagne dans ce projet de construction personnalisé.
Mentions légales
Idée de réalisation en modèle prêt à décorer sur l'un de nos terrains partenaires, sous réserve de disponibilités. Voir détails en agence.Agence Maisons de la Côte Atlantique de Anglet (64600)
- Téléphone :
- 05 35 37 13 55
- Adressse :
- 11 allée d'Orion
64600 Anglet, France
