Maison neuve à
Saint-Astier
(24110) Référence :
ED2449552
Prix du projet : Maison avec Terrain
prix 246 000 €
- 4 pièces
- 3 chambres
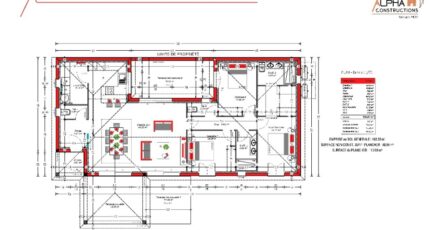
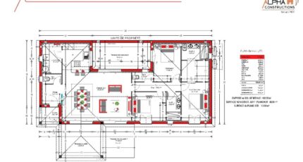
- Surface maison 104 m2
Maison neuve avec terrain à Saint Astier
Projet idéal pour résidence principale ou investissement, situé dans un secteur calme et recherché, proche du bourg et des commerces.
Le terrain de plus de 1700 m², plat, bénéficie d'une exposition Est-Ouest et d'un environnement paisible.
Terrain à la campagne dans un secteur calme et verdoyant pour un excellent potentiel de construction.
Le projet de maison neuve en CCMI comprend sur cette annonce,
3 chambres, dont une suite parentale,
Un espace de vie lumineux, semi-ouvert sur la cuisine,
Une buanderie, un cellier
Plusieurs terrasse couverte et non couverte
Prestations modernes et plan optimisé.
Projet personnalisable selon vos besoins et votre budget.
Contactez Esther Dolain au : O6.42.55.42.23 pour plus d'informations sur ce projet maison neuve à Saint Astier
Mentions légales
Terrain proposé par un partenaire foncier selon disponibilité dans le cadre d’un projet de construction avec Alpha Constructions. Les descriptions, photographies, surfaces et prix illustrant l’annonce sont fournies à titre indicatif et ne sont pas contractuels. Non soumis au DPE. Différents modèles disponibles.Agence Alpha Constructions de Boulazac (24750)
- Téléphone :
- 05 53 09 46 75
- Adressse :
- 24 Rue Yvon Delbos
24750 Boulazac, France