Maison neuve à
Saint-Laurent-de-Gosse
(40390) Référence :
EP2478217
Prix du projet : Maison avec Terrain
prix 295 000 €
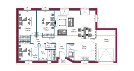
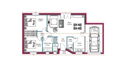
- 4 pièces
- 3 chambres
- Surface maison 90 m2
Émilie PINEAU des maisons MCA à Anglet, vous propose d'adapter le modèle Lys, sur ce joli terrain d'environ 560m², situé sur la commune de Saint-Laurent-de-Gosse à seulement 25 min de Bayonne dans un quartier calme et verdoyant.
Cette maison de 68m2 est optimisée au maximum! Elle est composée d'un espace à vivre traversant avec cuisine ouverte. Elle dispose également d'un espace nuit composé de 2 belles chambres avec placards et une salle d'eau avec WC. Son plus : elle dispose d'une suite parentale à l'écart, avec dressing et salle d'eau !
Ce modèle saura vous plaire grâce à son agencement fonctionnel. Elle est idéale pour un premier achat, un investissement locatif ou saisonnier.
Ce projet peut-être modifié sur mesure : agencement des plans, moduler le nombre de chambres, option garage, réduire ou agrandir la surface habitable...
Le prix inclus les raccordements, assurances et viabilisation. Hors frais de notaire.
Vous souhaitez une maison totalement sur-mesure qui vous ressemble ?
Vous êtes au bon endroit !
Contactez vite votre conseillère Émilie PINEAU à l'agence MCA d'Anglet, pour une étude personnalisée de votre projet.
Chez MAISONS DE LA COTE ATLANTIQUE nous sommes à votre écoute et nos conseillers vous accompagnent tout au long de votre projet de construction.
Le terrain de cette offre vous est proposé dans le cadre d'un projet de construction MCA. * Visuels non contractuels.
Mentions légales
Idée de réalisation en modèle prêt à décorer sur l'un de nos terrains partenaires, sous réserve de disponibilités. Voir détails en agence.Agence Maisons de la Côte Atlantique de Anglet (64600)
- Téléphone :
- 05 35 37 13 55
- Adressse :
- 11 allée d'Orion
64600 Anglet, France
