Maison neuve à
Saint-Pierre-d'Irube (64990) Référence : CB2404653

Prix du projet : Maison avec Terrain

prix 514 664 €

  • 5 pièces
  • 4 chambres
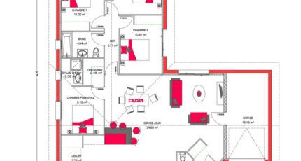
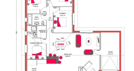
  • Surface maison 115 m2

Dans un environnement calme et recherché proche du village de Saint Pierre d'Irube, de Bayonne, Couleur villas vous propose un projet de plain-pied de 115 m2 comprenant 4 chambres dont une suite parentale, un grand espace de vie de 55 m2 et un garage de 15 m2.
Situation dominante offrant une vue dégagée, le terrain est déjà viabilisé et aménagé.
Ce projet vous offre un cadre de vie privilégié en pleine nature tout en étant proche de Bayonne et Anglet.
N'hésitez pas à me contacter Mme Christine Baudoin Conseillère Couleur Villas (O6-87-14-38-67), je vous recevrez avec plaisir dans notre agence de Bayonne, pour que nous construire ensemble le projet qui vous ressemble et faire une estimations du budget complet avec toutes les taxes et frais.

Mentions légales

Terrain proposé par un partenaire foncier selon disponibilité dans le cadre d’un projet de construction avec Couleur Villas. Les descriptions, photographies, surfaces et prix illustrant l’annonce sont fournies à titre indicatif et ne sont pas contractuels. Non soumis au DPE. Différents modèles disponibles.

Contactez l'agence de Bayonne

05 59 25 04 24

    * Champs obligatoires

    Vos informations sont traitées par HEXAOM et transmises à un conseiller commercial qui vous contactera afin de répondre à votre demande. Les plans et images présentés sur notre site sont la propriété d’HEXAOM et ne peuvent pas être reproduits sans son accord. Pour retrouver notre politique de protection des données personnelles et exercer vos droits conformément à la « loi informatique et liberté » cliquez-ici.