Maison neuve à
Varetz (19240) Référence : MM2254942

Prix du projet : Maison avec Terrain

prix 355 000 €

  • 4 pièces
  • 3 chambres
  • Surface maison 120 m2

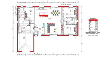
L'élégance d'une maison en L pensée pour votre confort
Découvrez ce projet d'architecture contemporaine de 120 m², où la fluidité des volumes et la luminosité naturelle subliment chaque espace.
Elle se compose de trois chambres élégamment équipées de rangements intégrés dont une suite parentale séparée, ainsi qu'une salle de bain raffinée avec double vasque et baignoire.

L'espace jour conjugue avec justesse convivialité et fonctionnalité : une cuisine avec îlot central s'intègre parfaitement au séjour baigné de lumière, favorisant un cadre de vie chaleureux et accueillant.

Un garage attenant complète ce bien, garantissant praticité et discrétion.

Conçue dans le respect de la réglementation environnementale RE2020, cette maison allie esthétisme et performance énergétique.
Plans personnalisables et accompagnement personnalisé pour concrétiser votre projet en toute sérénité.

Offrez-vous un cadre de vie à la hauteur de vos attentes. Contactez-nous pour découvrir ce projet d'exception.

Mentions légales

Terrain proposé par un partenaire foncier selon disponibilité dans le cadre d’un projet de construction avec Alpha Constructions. Les descriptions, photographies, surfaces et prix illustrant l’annonce sont fournies à titre indicatif et ne sont pas contractuels. Non soumis au DPE. Différents modèles disponibles.

Contactez l'agence de Brive-la-Gaillarde

05 55 23 02 47

    * Champs obligatoires

    Vos informations sont traitées par HEXAOM et transmises à un conseiller commercial qui vous contactera afin de répondre à votre demande. Les plans et images présentés sur notre site sont la propriété d’HEXAOM et ne peuvent pas être reproduits sans son accord. Pour retrouver notre politique de protection des données personnelles et exercer vos droits conformément à la « loi informatique et liberté » cliquez-ici.