Maison neuve à
Vieille-Église-en-Yvelines
(78125) Référence :
FL2388765
Prix du projet : Maison avec Terrain
prix 595 000 €
- 6 pièces
- 4 chambres
- Surface maison 142 m2
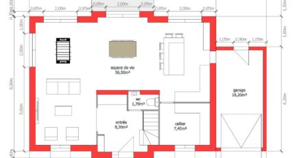
Dans un village de charme situé 5 minutes de Rambouillet sur la commune de Vieille Eglise, venez découvrir cette maison familiale de 143m² habitable aux volumes généreux, implantée sur un beau terrain plat de 1 400m², exposé plein Sud.
Vous profiterez d'un bel espace de vie de 56m², avec une cuisine ouverte donnant sur un cellier et garage. L'étage offre trois belles chambres (dont une avec dressing) et un bureau (chambre d'amis) avec vue sur le jardin.
Maison disposant des nouvelles réglementations RE 2020 et certifiée NF Habitat HQE.
Renseignez-vous auprès de Fabien LAROYE au 06/61/52/02/68/
Annonce proposée par un Agent Commercial Partenaire.
Mentions légales
Terrain proposé par un partenaire foncier selon disponibilités et autorisation de publicité au prix de €. Hors droit d'enregistrement et frais de notaire. Terrain + Maison proposés au prix de 595 000 € (Hors branchements et raccordements, papiers peints, peintures, revêtement de sol dans les chambres. Tarif modifiable sans préavis). Etiquette énergie : A. Différents modèles disponibles pour ce terrain. Assurances et garanties du constructeur (RC professionnelle, décennale, dommage ouvrage, garantie de remboursement de l'acompte, livraison à prix et délai convenu) : https://www.maisonsberval.fr/mentions-legales/.Agence Maisons Berval de Rambouillet (78120)
- Téléphone :
- 06 61 52 02 68
- Adressse :
- 14 rue Georges Clémenceau
78120 Rambouillet, France
