Maison neuve à
Montreuil
(93100) Référence :
TM2465569_2
Prix du projet : Maison avec Terrain
prix 450 000 €
- 5 pièces
- 3 chambres
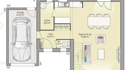
- Surface maison 90 m2
Maison T5 (90 m²) en vente à Montreuil
EMPLACEMENT PRIVILÉGIÉ - MAISON 5 PIÈCES NEUVE
À vendre : à côté du RER A (station Vincennes, 3 min de Paris), notre agence Maisons France Confort Magny-le-Hongre est heureuse de vous présenter, bénéficiant d'un emplacement d'exception dans Montreuil (93100), cette maison de 5 pièces de 90 m² et de 300 m² de terrain.
C'est une maison de 2 niveaux. Elle est composée de trois chambres, d'une cuisine et d'une salle de bains. Cette maison est neuve.
La propriété se situe dans un secteur recherché. Il y a des écoles de tous niveaux (de la maternelle au lycée) à moins de 10 minutes à pied, tout comme quatre crèches. Niveau transports en commun, on trouve cinq lignes de RER ainsi que 55 gares à moins de 10 minutes en voiture. Il y a une bibliothèque, des commerces, des boucheries-charcuteries, une poissonnerie, deux bureaux de poste et quatre supérettes à quelques minutes à peine.
Elle est à vendre pour la somme de 450 000 €.
Contactez notre agence (MELES Teddy : 06-17-56-83-36) pour plus de renseignements sur la maison ou sur les démarches à suivre. Maisons France Confort Magny-le-Hongre est là pour vous accompagner à toutes les étapes de votre projet.
Annonce proposée par un Agent Commercial Partenaire.
Mentions légales
Terrain proposé par un partenaire foncier selon disponibilités et autorisation de publicité au prix de 265 000 €. Hors droit d'enregistrement et frais de notaire. Terrain + Maison proposés au prix de 450 000 € (Hors branchements et raccordements, papiers peints, peintures, revêtement de sol dans les chambres. Tarif modifiable sans préavis). Etiquette énergie : A. Différents modèles disponibles pour ce terrain. Assurances et garanties du constructeur (RC professionnelle, décennale, dommage ouvrage, garantie de remboursement de l'acompte, livraison à prix et délai convenu) : https://www.maisons-france-confort.fr/mentions-legales/. HEXAOM Services est enregistré auprès de l'ORIAS en tant que Courtier en financement, Niveau 1, sous le numéro 14001345.Agence Maisons France Confort de Magny-le-Hongre (77700)
- Téléphone :
- 01 84 80 92 96
- Adressse :
- 11 rue de Courtalin
77700 Magny-le-Hongre, France
