Maison neuve à
Montreuil (93100) Référence : TM2465569_14

Prix du projet : Maison avec Terrain

prix 300 000 €

  • 5 pièces
  • 3 chambres
  • Surface maison 90 m2

Maison de 5 pièces (90 m²) en vente à Montreuil
EMPLACEMENT PRIVILÉGIÉ - MAISON 5 PIÈCES NEUVE
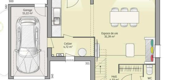
Proche de la station Vincennes du RER A (3 min de Paris), nous sommes ravis de vous présenter en vente, bénéficiant d'un emplacement privilégié dans Montreuil (93100), cette maison de 5 pièces de plain-pied de 90 m² et de 300 m² de terrain. Son intérieur dispose de trois chambres, d'une cuisine et d'une salle de bains.
La maison est neuve.
Cette maison se trouve dans un secteur convoité. Des établissements scolaires (de la maternelle au lycée) sont implantés à moins de 10 minutes à pied, tout comme quatre structures d'accueil pour les tout-petits. Côté transports en commun, il y a cinq lignes de RER ainsi que 55 gares à moins de 10 minutes en voiture. On trouve une bibliothèque, des commerces, une poissonnerie, des épiceries, deux bureaux de poste et des boucheries-charcuteries à proximité de la maison.
Elle est proposée à l'achat pour 300 000 €.
N'hésitez pas à prendre contact avec Teddy MELES (06-17-56-83-36) pour toute question sur la maison ou sur les modalités de vente. Maisons France Confort Magny-le-Hongre est là pour vous accompagner dans tous vos projets immobiliers.

Annonce proposée par un Agent Commercial Partenaire.

Mentions légales

Terrain proposé par un partenaire foncier selon disponibilités et autorisation de publicité au prix de 265 000 €. Hors droit d'enregistrement et frais de notaire. Terrain + Maison proposés au prix de 300 000 € (Hors branchements et raccordements, papiers peints, peintures, revêtement de sol dans les chambres. Tarif modifiable sans préavis). Etiquette énergie : A. Différents modèles disponibles pour ce terrain. Assurances et garanties du constructeur (RC professionnelle, décennale, dommage ouvrage, garantie de remboursement de l'acompte, livraison à prix et délai convenu) : https://www.maisons-france-confort.fr/mentions-legales/. HEXAOM Services est enregistré auprès de l'ORIAS en tant que Courtier en financement, Niveau 1, sous le numéro 14001345.

Contactez l'agence de Magny-le-Hongre

01 84 80 92 96

    * Champs obligatoires

    Vos informations sont traitées par HEXAOM et transmises à un conseiller commercial qui vous contactera afin de répondre à votre demande. Les plans et images présentés sur notre site sont la propriété d’HEXAOM et ne peuvent pas être reproduits sans son accord. Pour retrouver notre politique de protection des données personnelles et exercer vos droits conformément à la « loi informatique et liberté » cliquez-ici.