ABORDIA T 76
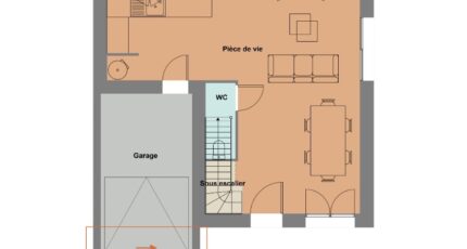
Plan maison 4 pièces 3 chambres Surface maison 73.73 m2
Une maison familiale conviviale, tournée vers l'extérieur
Avec sa toiture à deux pans et ses façades claires animées par un bandeau coloré, cette maison à étage affirme une architecture chaleureuse et équilibrée. Les volumes simples et bien proportionnés s'intègrent naturellement dans leur environnement, tandis que les ouvertures généreuses apportent une belle luminosité intérieure. Côté jardin, la terrasse en bois prolonge la maison et crée un espace extérieur accueillant, idéal pour les repas et moments de détente en famille.
Le rez-de-chaussée est pensé comme un véritable espace de vie central. La grande pièce de vie, regroupant salon, salle à manger et cuisine ouverte, bénéficie d'une circulation fluide et d'un lien direct avec la terrasse. La lumière naturelle accompagne les usages du quotidien, rendant l'espace agréable à vivre en toute saison. Un WC indépendant, un espace sous escalier optimisé et un garage attenant viennent compléter ce niveau, pour une organisation pratique et fonctionnelle.
À l'étage, la maison propose un espace nuit confortable et bien structuré. Trois chambres lumineuses offrent à chacun son intimité, tandis qu'une salle de bains familiale et un palier central assurent une distribution simple et efficace des pièces. L'ensemble est conçu pour répondre aux besoins d'une vie de famille équilibrée, entre partage et tranquillité.
Fidèle au concept Bâti-Activ de Maisons de l'Avenir, cette maison bénéficie d'une conception bioclimatique favorisant le confort thermique, la luminosité naturelle et les économies d'énergie. En choisissant Maisons de l'Avenir, vous profitez également de notre service 3-en-1 (maison, terrain et financement) et de l'accompagnement de proximité de nos équipes locales, pour un projet suivi sereinement de A à Z.
À retenir pour votre futur projet :
Une pièce de vie généreuse, largement ouverte sur la terrasse, pour profiter pleinement du jardin au quotidien.



