AQUA AURA
Plan maison 5 pièces 4 chambres Surface maison 130 à 135 m2
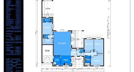
Maison de "style" de plain pied d'une surface habitable de 132m².
Comprenant un coin nuit avec 3 chambres, 1 salle de bain et 1 WC.
Une suite parentale isolée des 3 autres chambres avec dressing, salle de bain et WC indépendant.
Pièce de vie avec belle hauteur sous plafond rampant de 50m², cuisine comprise.
Un garage, 1 cellier attenant à la cuisine, ainsi qu'une belle entrée traversante.
Elle dispose d'un patio d'accueil, 1 préau et 1 pool house.
Cette maison est conforme à la règlementation RE 2020.



