Lumina 160 GI
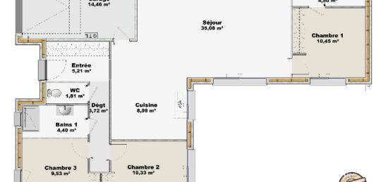
Plan maison 5 pièces 4 chambres Surface maison 160 m2
Découvrez ce nouveau modèle conçu par notre équipe des Hauts-de-France.
Parfait pour la vie de famille, ce modèle de 160 m² en plain-pied dispose d'une belle et grande pièce de vie lumineuse de 50 m² comprenant une cuisine ouverte et donnant un accès direct à la terrasse et au jardin.
On y retrouve également une belle suite parentale de 35 m² avec dressing et salle d'eau privative, 2 autres chambres de 17 m², une salle de bains commune et un bureau.
Pour le côté pratique, on retrouve un cellier et un garage de 21 m² Cette maison au design moderne combine la brique moulée main, l'enduit et le bardage bois. On aime particulièrement les décrochés à toit plat qui permettent de privilégier l'intimité de chacun et d'offrir un cadre de vie agréable.



