Maison 133m² - 4CH - Garage - 161BX220015
Plan maison 5 pièces 4 chambres Surface maison 130 à 140 m2
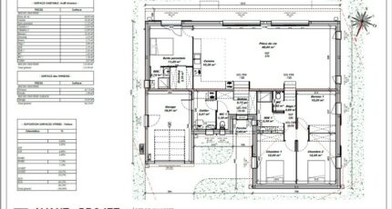
Maison de 133m2, comprenant 3 chambres dont une suite parentale, 2 salles d'eau au total et une pièce de vie de 48m2 avec sa cuisine ouverte de 10m².
Vous pourrez également profiter du confort d'un garage de 19m2 donnant un accès direct sur un cellier.
Construction BERMAX sur vide sanitaire, garantissant une adaptation sur tous types de terrains.
Plancher chauffant alimenté par une pompe à chaleur.
Volets roulants 100% électriques.



