Maison neuve à
Agy (14400) Référence : JS2484768_1

Prix du projet : Maison avec Terrain

prix 212 200 €

  • 5 pièces
  • 3 chambres
  • Surface maison 95 m2

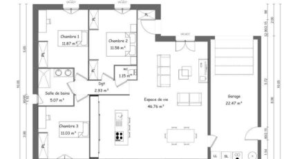
VENTE : maison T5 (95 m²) à Agy
IDÉALEMENT SITUÉE - MAISON 5 PIÈCES NEUVE
En vente : située à deux pas de Caen, nous sommes heureux de vous présenter, idéalement située dans Agy (14400), cette maison de 5 pièces de plain-pied de 95 m² et de 463 m² de terrain.
Son intérieur inclut trois chambres, une cuisine et deux salles de bains. Cette maison est neuve.
La maison se trouve dans un secteur convoité. Il y a des écoles du primaire et du secondaire à moins de 10 minutes en voiture, tout comme deux structures d'accueil pour la petite enfance à moins de 10 minutes à pied. Niveau transports, on trouve deux gares (Bayeux et Le Molay-Littry) à moins de 10 minutes en voiture. La nationale N13 est accessible à 4 km. Il y a quatre bibliothèques, des tennis, un bowling, des commerces, une poissonnerie, des épiceries, des boucheries-charcuteries et deux bureaux de poste à proximité. 3 marchés animent les environs.
Son prix de vente est de 212 200 €.
Prenez contact avec Emilie HUE (tél : 06-29-81-46-66) pour tout renseignement sur la maison ou sur les démarches à suivre.

Annonce proposée par un Agent Commercial Partenaire.

Mentions légales

Terrain proposé par un partenaire foncier selon disponibilités et autorisation de publicité au prix de 57 200 €. Hors droit d'enregistrement et frais de notaire. Terrain + Maison proposés au prix de 212 200 € (Hors branchements et raccordements, papiers peints, peintures, revêtement de sol dans les chambres. Tarif modifiable sans préavis). Etiquette énergie : A. Différents modèles disponibles pour ce terrain. Assurances et garanties du constructeur (RC professionnelle, décennale, dommage ouvrage, garantie de remboursement de l'acompte, livraison à prix et délai convenu) : https://www.maisons-france-confort.fr/mentions-legales/. HEXAOM Services est enregistré auprès de l'ORIAS en tant que Courtier en financement, Niveau 1, sous le numéro 14001345.

Contactez l'agence de Bayeux

02 31 51 20 91

    * Champs obligatoires

    Vos informations sont traitées par HEXAOM et transmises à un conseiller commercial qui vous contactera afin de répondre à votre demande. Les plans et images présentés sur notre site sont la propriété d’HEXAOM et ne peuvent pas être reproduits sans son accord. Pour retrouver notre politique de protection des données personnelles et exercer vos droits conformément à la « loi informatique et liberté » cliquez-ici.