Maison neuve à
Tour-en-Bessin
(14400) Référence :
JS2485654_2
Prix du projet : Maison avec Terrain
prix 214 900 €
- 5 pièces
- 3 chambres
- Surface maison 95 m2
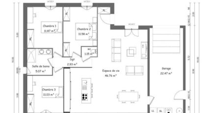
VENTE : maison T5 (95 m²) à Tour-en-Bessin
IDÉALEMENT SITUÉE - MAISON 5 PIÈCES NEUVE
En vente idéalement située dans Tour-en-Bessin (14400), votre agence Maisons France Confort Bayeux est heureuse de vous proposer cette maison de 5 pièces de plain-pied de 95 m² et de 467 m² de terrain.
Conçue de plain-pied, elle inclut trois chambres, une cuisine et deux salles de bains. La maison est neuve.
La maison est située dans un quartier attractif. Il y a l'École Primaire Victor Paquet à moins de 10 minutes à pied. Niveau transports, on trouve deux gares (Bayeux et Le Molay-Littry) à moins de 10 minutes en voiture. La nationale N13 est accessible à 2 km. Il y a une bibliothèque à quelques minutes du logement.
Son prix de vente est de 214 900 €.
N'hésitez pas à prendre contact avec notre agence (Emilie HUE : 06-29-81-46-66) pour tout renseignement sur la propriété. Maisons France Confort Bayeux vous accompagne dans tous vos projets immobiliers et dans toutes vos démarches.
Annonce proposée par un Agent Commercial Partenaire.
Mentions légales
Terrain proposé par un partenaire foncier selon disponibilités et autorisation de publicité au prix de 59 900 €. Hors droit d'enregistrement et frais de notaire. Terrain + Maison proposés au prix de 214 900 € (Hors branchements et raccordements, papiers peints, peintures, revêtement de sol dans les chambres. Tarif modifiable sans préavis). Etiquette énergie : A. Différents modèles disponibles pour ce terrain. Assurances et garanties du constructeur (RC professionnelle, décennale, dommage ouvrage, garantie de remboursement de l'acompte, livraison à prix et délai convenu) : https://www.maisons-france-confort.fr/mentions-legales/. HEXAOM Services est enregistré auprès de l'ORIAS en tant que Courtier en financement, Niveau 1, sous le numéro 14001345.Agence Maisons France Confort de Bayeux (14400)
- Téléphone :
- 02 31 51 20 91
- Adressse :
- 2, rue Saint Loup
14400 Bayeux, France
