Maison neuve à
Ambarès-et-Lagrave
(33440) Référence :
SP2459464_2
Prix du projet : Maison avec Terrain
prix 410 000 €
- 5 pièces
- 4 chambres
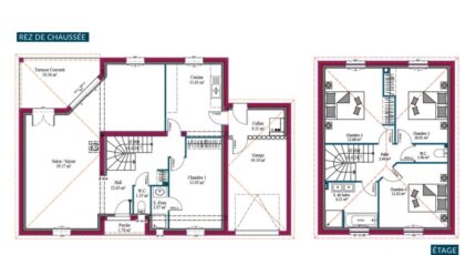
- Surface maison 130 m2
Contactez Sonia PURY (tél : O6-95-32-58-15) pour toutes questions sur le bien ou sur les modalités de vente.
MAISON NEUVE 5 pièces + garage
Située à 9 km de Bordeaux, venez découvrir cette maison étage partiel de 5 pièces de 130 m² sur une parcelle 700 m² viabilisé .
Cette maison est neuve se compose de 4 chambres, une pièce de vie de 62 m2, 2 SDB et un garage.
Les écoles sont à moins de 10 mn en voiture.
Les transports gare et tram sont à proximité
L'autoroute A10 et la nationale N10, N89 sont accessibles à moins de 4 km.
Elle est proposée au prix de 410000 €.
Mentions légales
Idée de réalisation en modèle prêt à décorer sur l'un de nos terrains partenaires, sous réserve de disponibilités. Voir détails en agence.Agence Maisons de la Côte Atlantique de Saint-André-de-Cubzac (33240)
- Téléphone :
- 05 57 43 10 38
- Adressse :
- 16, Place du Champ de Foire
33240 Saint-André-de-Cubzac, France
