Maison neuve à
Bassens
(33530) Référence :
SP2457017_3
Prix du projet : Maison avec Terrain
prix 494 000 €
- 5 pièces
- 4 chambres
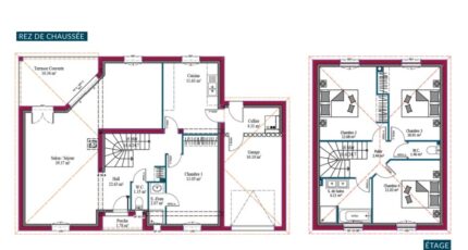
- Surface maison 130 m2
Contactez Sonia PURY (tél : O6-95-32-58-15) pour toutes questions sur le bien ou sur les modalités de vente.
MAISON NEUVE 5 pièces + garage
Située à 9 km de Bordeaux, venez découvrir cette maison étage partiel de 5 pièces de 130 m² sur une parcelle 935 m² viabilisé À 2mn du centre de BASSENS.
Cette maison est neuve, elle se compose de 4 chambres, une pièce de vie, entrée de 62 m2, 2 SDB et un garage.
Plusieurs établissements scolaires sont à moins de 10 mn en voiture.
Côté transports, la gare et le tram sont à coté.
L'autoroute A10 et la nationale N10, N89 sont accessibles à moins de 4 km.
Elle est proposée au prix de 494000 €.
Mentions légales
Idée de réalisation en modèle prêt à décorer sur l'un de nos terrains partenaires, sous réserve de disponibilités. Voir détails en agence.Agence Maisons de la Côte Atlantique de Saint-André-de-Cubzac (33240)
- Téléphone :
- 05 57 43 10 38
- Adressse :
- 16, Place du Champ de Foire
33240 Saint-André-de-Cubzac, France
