Maison neuve à
Ambrault (36120) Référence : KG2430736_6

Prix du projet : Maison avec Terrain

prix 275 340 €

  • 6 pièces
  • 4 chambres
  • Surface maison 120 m2

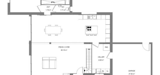
Ambrault : Projet de construction maison T6 (120 m²)
IDÉALEMENT SITUÉE - MAISON 6 PIÈCES NEUVE
En vente à 20 km de Châteauroux, découvrez, idéalement située dans Ambrault (36120), cette maison de 6 pièces de plain-pied de 120 m².
Conçue de plain-pied, elle est composée de quatre chambres, d'une cuisine et de deux salles de bains. La maison est neuve.
Le terrain de la propriété est de 892 m².
Cette maison se trouve dans un quartier prisé. Il y a l'École Primaire Gérard Thomzeau à moins de 10 minutes à pied et une crèche. La nationale N151 est accessible à 20 km. On trouve un tennis et une boucherie-charcuterie dans les environs.
Son prix de vente est de 275 340 €.
Contactez notre agence (GRIMAUD Kevin : *6-22-14-89-67) pour obtenir de plus amples renseignements sur la maison, sur les démarches à suivre ou sur les modalités de vente. Maisons Bruno Petit MJB Châteauroux vous accompagne à toutes les étapes de l'achat et dans tous vos projets immobiliers.

Mentions légales

Terrain proposé par un partenaire foncier selon disponibilités et autorisation de publicité au prix de 20 840 €. Hors droit d'enregistrement et frais de notaire. Terrain + Maison proposés au prix de 275 340 € (Hors branchements et raccordements, papiers peints, peintures, revêtement de sol dans les chambres. Tarif modifiable sans préavis). Etiquette énergie : A. Différents modèles disponibles pour ce terrain. Assurances et garanties du constructeur (RC professionnelle, décennale, dommage ouvrage, garantie de remboursement de l'acompte, livraison à prix et délai convenu) : https://www.maisons-brunopetit.fr/mentions-legales/.

Contactez l'agence de Châteauroux

02 54 22 66 24

    * Champs obligatoires

    Vos informations sont traitées par HEXAOM et transmises à un conseiller commercial qui vous contactera afin de répondre à votre demande. Les plans et images présentés sur notre site sont la propriété d’HEXAOM et ne peuvent pas être reproduits sans son accord. Pour retrouver notre politique de protection des données personnelles et exercer vos droits conformément à la « loi informatique et liberté » cliquez-ici.