Maison neuve à
Saint-Août (36120) Référence : KG2430792_4

Prix du projet : Maison avec Terrain

prix 277 000 €

  • 6 pièces
  • 4 chambres
  • Surface maison 120 m2

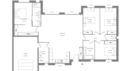
Projet de construction d'une maison F6 (120 m²) à Saint-Août
EMPLACEMENT PRIVILÉGIÉ - MAISON 6 PIÈCES NEUVE
En vente : localisée à quelques kilomètres de Châteauroux, découvrez cette maison de 6 pièces de plain-pied de 120 m² bénéficiant d'un emplacement d'exception dans Saint-Août (36120).
Elle dispose de quatre chambres, d'une cuisine et de deux salles de bains. La maison est neuve.
Le terrain de la propriété est de 1 060 m².
La maison se situe dans un quartier recherché. Il y a l'École Primaire les Marronniers à moins de 10 minutes à pied et deux structures d'accueil pour la petite enfance. On trouve un tennis, deux commerces, une boulangerie, une épicerie et une boucherie-charcuterie à quelques minutes de la maison. Le marché Place du Champ de foire a lieu chaque mardi matin.
Elle est proposée à l'achat pour 277 000 €.
Contactez Kevin GRIMAUD (*6-22-14-89-67) pour toute information sur le bien. Maisons Bruno Petit MJB Châteauroux vous accompagne dans toutes vos démarches et dans tous vos projets immobiliers.

Mentions légales

Terrain proposé par un partenaire foncier selon disponibilités et autorisation de publicité au prix de 22 000 €. Hors droit d'enregistrement et frais de notaire. Terrain + Maison proposés au prix de 277 000 € (Hors branchements et raccordements, papiers peints, peintures, revêtement de sol dans les chambres. Tarif modifiable sans préavis). Etiquette énergie : A. Différents modèles disponibles pour ce terrain. Assurances et garanties du constructeur (RC professionnelle, décennale, dommage ouvrage, garantie de remboursement de l'acompte, livraison à prix et délai convenu) : https://www.maisons-brunopetit.fr/mentions-legales/.

Contactez l'agence de Châteauroux

02 54 22 66 24

    * Champs obligatoires

    Vos informations sont traitées par HEXAOM et transmises à un conseiller commercial qui vous contactera afin de répondre à votre demande. Les plans et images présentés sur notre site sont la propriété d’HEXAOM et ne peuvent pas être reproduits sans son accord. Pour retrouver notre politique de protection des données personnelles et exercer vos droits conformément à la « loi informatique et liberté » cliquez-ici.