Maison neuve à
Anet (28260) Référence : MB2425017_3

Prix du projet : Maison avec Terrain

prix 231 493 €

  • 6 pièces
  • 4 chambres
  • Surface maison 91 m2

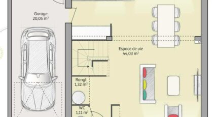
VENTE d'une maison de 6 pièces (91 m²) à Anet
EMPLACEMENT PRIVILÉGIÉ - MAISON 6 PIÈCES NEUVE
En vente à deux pas d'Évreux, notre agence Maisons France Confort Vernon est ravie de vous proposer cette maison de 6 pièces de 91 m² bénéficiant d'un emplacement privilégié dans Anet (28260).
Cette maison compte 2 niveaux. Elle propose quatre chambres, une cuisine et une salle de bains. La maison est neuve.
Le terrain du bien s'étend sur 260 m².
La maison se trouve dans un secteur recherché. Il y a des établissements scolaires de tous niveaux à moins de 10 minutes à pied. Côté transports en commun, on trouve la gare Bueil à moins de 10 minutes en voiture. L'autoroute A13 et les nationales N12, N154 et N13 sont accessibles à moins de 20 km. Il y a une bibliothèque, des commerces, deux boulangeries, un bureau de poste, une boucherie-charcuterie et une épicerie à quelques minutes du logement.
Elle est proposée à l'achat pour 231 493 €.
N'hésitez pas à prendre contact avec notre agence (BESNARD Mickael : 06-15-50-56-87) pour tout renseignement sur le bien ou sur les démarches à suivre.

Annonce proposée par un Agent Commercial Partenaire.

Mentions légales

Terrain proposé par un partenaire foncier selon disponibilités et autorisation de publicité au prix de 69 900 €. Hors droit d'enregistrement et frais de notaire. Terrain + Maison proposés au prix de 231 493 € (Hors branchements et raccordements, papiers peints, peintures, revêtement de sol dans les chambres. Tarif modifiable sans préavis). Etiquette énergie : A. Différents modèles disponibles pour ce terrain. Assurances et garanties du constructeur (RC professionnelle, décennale, dommage ouvrage, garantie de remboursement de l'acompte, livraison à prix et délai convenu) : https://www.maisons-france-confort.fr/mentions-legales/. HEXAOM Services est enregistré auprès de l'ORIAS en tant que Courtier en financement, Niveau 1, sous le numéro 14001345.

Contactez l'agence de Vernon

02 32 51 45 05

    * Champs obligatoires

    Vos informations sont traitées par HEXAOM et transmises à un conseiller commercial qui vous contactera afin de répondre à votre demande. Les plans et images présentés sur notre site sont la propriété d’HEXAOM et ne peuvent pas être reproduits sans son accord. Pour retrouver notre politique de protection des données personnelles et exercer vos droits conformément à la « loi informatique et liberté » cliquez-ici.