Maison neuve à
Anet (28260) Référence : YB2425025_1

Prix du projet : Maison avec Terrain

prix 230 000 €

  • 6 pièces
  • 4 chambres
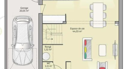
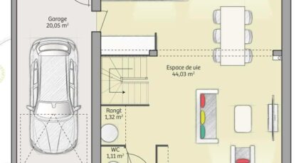
  • Surface maison 91 m2

VENTE d'une maison de 6 pièces (91 m²) à Anet
IDÉALEMENT SITUÉE - MAISON 6 PIÈCES NEUVE
À vendre : localisée à 29 km d'Évreux, nous sommes heureux de vous proposer cette maison de 6 pièces de 91 m² avec vue sur espace vert idéalement située dans Anet (28260). Elle compte quatre chambres, une cuisine et une salle de bains.
Le terrain de la propriété est de 260 m².
Cette maison possède 2 niveaux. Elle est neuve.
La maison se situe dans un quartier recherché. Il y a des écoles de tous niveaux (de la maternelle au lycée) à moins de 10 minutes à pied. Niveau transports en commun, on trouve la gare Bueil à moins de 10 minutes en voiture. L'autoroute A13 et les nationales N12, N154 et N13 sont accessibles à moins de 20 km. Il y a une bibliothèque, des commerces, deux boulangeries, une boucherie-charcuterie, une épicerie et un bureau de poste à quelques minutes de la maison.
Son prix de vente est de 230 000 €.
Contactez notre agence (Yassine BOUSELSELA : 06-14-36-81-09) pour tout renseignement sur la maison.

Mentions légales

Terrain proposé par un partenaire foncier selon disponibilités et autorisation de publicité au prix de 69 000 €. Hors droit d'enregistrement et frais de notaire. Terrain + Maison proposés au prix de 230 000 € (Hors branchements et raccordements, papiers peints, peintures, revêtement de sol dans les chambres. Tarif modifiable sans préavis). Etiquette énergie : A. Différents modèles disponibles pour ce terrain. Assurances et garanties du constructeur (RC professionnelle, décennale, dommage ouvrage, garantie de remboursement de l'acompte, livraison à prix et délai convenu) : https://www.maisons-france-confort.fr/mentions-legales/. HEXAOM Services est enregistré auprès de l'ORIAS en tant que Courtier en financement, Niveau 1, sous le numéro 14001345.

Contactez l'agence de Limay

01 30 33 96 64

    * Champs obligatoires

    Vos informations sont traitées par HEXAOM et transmises à un conseiller commercial qui vous contactera afin de répondre à votre demande. Les plans et images présentés sur notre site sont la propriété d’HEXAOM et ne peuvent pas être reproduits sans son accord. Pour retrouver notre politique de protection des données personnelles et exercer vos droits conformément à la « loi informatique et liberté » cliquez-ici.