Maison neuve à
Angy
(60250) Référence :
XDSS2421786_1
Prix du projet : Maison avec Terrain
prix 305 000 €
- 6 pièces
- 4 chambres
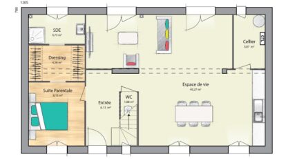
- Surface maison 105 m2
Terrain + Maison - Angy (60)
À Angy, projet de construction sur terrain de 1 835 m², viabilisé eau + électricité, accès direct sur rue, périmètre Bâtiments de France.
Maison traditionnelle R+Combles - 105 m² habitables (sans garage)
4 chambres dont 1 suite parentale au RDC, 3 chambres + SDB à l'étage, cellier attenant à la cuisine.
Prix incluant : terrain + maison + frais annexes.
Projet personnalisable selon PLU et ABF.
📞 Infos et étude sur demande, auprès de Xavier Dos Santos, conseiller commercial chez MAISONS FRANCE CONFORT, au 06 16 27 53 27.
Mentions légales
Terrain proposé par un partenaire foncier selon disponibilités et autorisation de publicité au prix de 79 000 €. Hors droit d'enregistrement et frais de notaire. Terrain + Maison proposés au prix de 305 000 € (Hors branchements et raccordements, papiers peints, peintures, revêtement de sol dans les chambres. Tarif modifiable sans préavis). Etiquette énergie : A. Différents modèles disponibles pour ce terrain. Assurances et garanties du constructeur (RC professionnelle, décennale, dommage ouvrage, garantie de remboursement de l'acompte, livraison à prix et délai convenu) : https://www.maisons-france-confort.fr/mentions-legales/. HEXAOM Services est enregistré auprès de l'ORIAS en tant que Courtier en financement, Niveau 1, sous le numéro 14001345.Agence Maisons France Confort de Compiègne (60200)
- Téléphone :
- 03 44 86 81 34
- Adressse :
- 47, cours Guynemer
60200 Compiègne, France
