Maison neuve à
Arrest (80820) Référence : DD_eu42_07-1_1

Prix du projet : Maison avec Terrain

prix 207 600 €

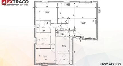
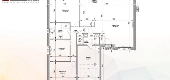
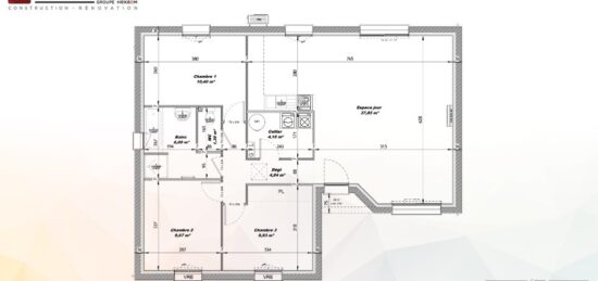
  • 4 pièces
  • 3 chambres
  • Surface maison 98 m2

VENTE : maison de 4 pièces (98 m²) à Arrest
MAISON 4 PIÈCES NEUVE
À vendre à 15 km de la Manche, découvrez cette maison de 4 pièces de plain-pied de 98 m² à Arrest (80820). Son intérieur comporte trois chambres, une cuisine et une salle de bains.
Le terrain de la propriété s'étend sur 766 m².
Cette maison est neuve.
Il y a une école primaire dans le quartier. Côté transports, on trouve la gare Noyelles-sur-Mer à moins de 10 minutes en voiture. Les autoroutes A28 et A16 sont accessibles à moins de 14 km. Il y a une bibliothèque et une boucherie-charcuterie dans les environs.
Son prix de vente est de 207 600 €.
Contactez notre agence (DERULLES Delphine : 06-67-13-79-40) pour toute question sur cette maison ou sur les démarches à suivre.

Mentions légales

Terrain proposé par un partenaire foncier selon disponibilités et autorisation de publicité au prix de 45 960 €. Hors droit d'enregistrement et frais de notaire. Maison proposée, avec un contrat de construction de maison individuelle, dans le cadre de la loi du 19/12/1990, au prix de 161 640 € (Hors branchements et raccordements, papiers peints, peintures, revêtement de sol dans les chambres, qui sont chiffrés dans les travaux qui restent à charge du client. Tarif modifiable sans préavis). Étiquette énergie : A. Différents modèles disponibles pour ce terrain. Assurances et garanties du constructeur comprises (RC professionnelle, décennale, dommage ouvrage).