Maison neuve à
Arrest
(80820) Référence :
DD_eu43_05-3_3
Prix du projet : Maison avec Terrain
prix 187 900 €
- 4 pièces
- 3 chambres
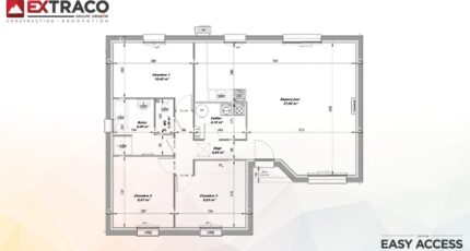
- Surface maison 84 m2
Maison T4 (84 m²) à vendre à Arrest
MAISON 4 PIÈCES NEUVE
À vendre : à 15 km de la Manche, Les Maisons Extraco Eu vous propose à Arrest (80820), cette maison de 4 pièces de plain-pied de 84 m² et de 809 m² de terrain. Elle propose trois chambres, une cuisine et une salle de bains.
La maison est neuve.
Une école primaire est implantée dans le quartier. Niveau transports en commun, il y a la gare Noyelles-sur-Mer à moins de 10 minutes en voiture. Les autoroutes A28 et A16 sont accessibles à moins de 14 km. On trouve une bibliothèque et une boucherie-charcuterie à proximité.
Elle est proposée à l'achat pour 187 900 €.
Prenez contact avec notre agence (DERULLES Delphine : 06-67-13-79-40) pour tout renseignement sur cette maison. Concrétisez vos projets immobiliers avec Les Maisons Extraco Eu.