Maison neuve à
Arsy (60190) Référence : CY2426808_10

Prix du projet : Maison avec Terrain

prix 280 000 €

  • 5 pièces
  • 3 chambres
  • Surface maison 90 m2

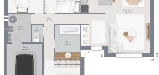
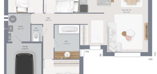
Maison de 5 pièces (90 m²) à vendre à Moret-Loing-et-Orvanne
IDÉALEMENT SITUÉE - MAISON 5 PIÈCES NEUVE
À vendre : à quelques minutes du Transilien R (gare de Saint-Mammès, 50 min de Paris), nous sommes ravis de vous présenter, idéalement située dans Moret-Loing-et-Orvanne (77250), cette maison de 5 pièces de plain-pied de 90 m² et de 431 m² de terrain.
Son intérieur comporte trois chambres, une cuisine et deux salles de bains. La maison est neuve.
La maison se situe dans un quartier recherché. On trouve l'École Maternelle les Lilas à moins de 10 minutes à pied. Côté transports, il y a 10 gares à moins de 10 minutes en voiture. Il y a un tennis et une bibliothèque à proximité.
Elle est proposée à l'achat pour 280 000 €.
Contactez Cedric YAHIAOUI (tél : 06-66-57-00-63) pour tout renseignement sur la maison, sur les démarches à suivre ou sur les modalités de vente. Donnez vie à vos projets immobiliers avec Maisons France Confort Magny-le-Hongre.

Annonce proposée par un Agent Commercial Partenaire.

Mentions légales

Terrain proposé par un partenaire foncier selon disponibilités et autorisation de publicité au prix de 90 900 €. Hors droit d'enregistrement et frais de notaire. Terrain + Maison proposés au prix de 280 000 € (Hors branchements et raccordements, papiers peints, peintures, revêtement de sol dans les chambres. Tarif modifiable sans préavis). Etiquette énergie : A. Différents modèles disponibles pour ce terrain. Assurances et garanties du constructeur (RC professionnelle, décennale, dommage ouvrage, garantie de remboursement de l'acompte, livraison à prix et délai convenu) : https://www.maisons-france-confort.fr/mentions-legales/. HEXAOM Services est enregistré auprès de l'ORIAS en tant que Courtier en financement, Niveau 1, sous le numéro 14001345.

Contactez l'agence de Mareuil-lès-Meaux

01 60 09 28 30

    * Champs obligatoires

    Vos informations sont traitées par HEXAOM et transmises à un conseiller commercial qui vous contactera afin de répondre à votre demande. Les plans et images présentés sur notre site sont la propriété d’HEXAOM et ne peuvent pas être reproduits sans son accord. Pour retrouver notre politique de protection des données personnelles et exercer vos droits conformément à la « loi informatique et liberté » cliquez-ici.