Maison neuve à
Arsy
(60190) Référence :
CY2426808_45
Prix du projet : Maison avec Terrain
prix 265 000 €
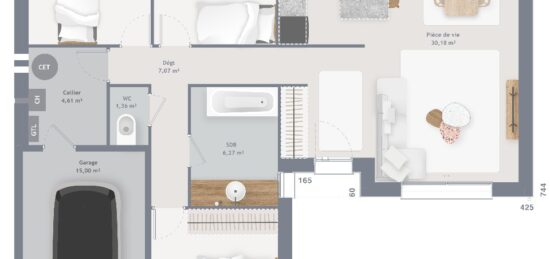
- 5 pièces
- 3 chambres
- Surface maison 85 m2
Arsy : maison de 5 pièces (85 m²) à vendre
PROCHE CENTRE-VILLE - MAISON 5 PIÈCES NEUVE
En vente à deux pas de Compiègne, Maisons France Confort Magny-le-Hongre vous présente cette maison de 5 pièces de 85 m² proche du centre-ville d'Arsy (60190).
C'est une maison de 2 niveaux. Son intérieur se divise en trois chambres, une cuisine et deux salles de bains. La maison est neuve.
Le terrain du bien est de 554 m².
L'École Primaire Séraphine Louis est implantée à moins de 10 minutes à pied. Niveau transports, on trouve six gares à moins de 10 minutes en voiture. L'autoroute A1 et la nationale N31 sont accessibles à moins de 2 km. Il y a une bibliothèque à quelques minutes du logement.
Son prix de vente est de 265 000 €.
Contactez Cedric YAHIAOUI (tél : 06-66-57-00-63) pour plus d'informations sur la maison, sur les modalités de vente ou sur les démarches à suivre. Faites de vos projets immobiliers une réalité avec Maisons France Confort Magny-le-Hongre.
Annonce proposée par un Agent Commercial Partenaire.
Mentions légales
Terrain proposé par un partenaire foncier selon disponibilités et autorisation de publicité au prix de 90 900 €. Hors droit d'enregistrement et frais de notaire. Terrain + Maison proposés au prix de 265 000 € (Hors branchements et raccordements, papiers peints, peintures, revêtement de sol dans les chambres. Tarif modifiable sans préavis). Etiquette énergie : A. Différents modèles disponibles pour ce terrain. Assurances et garanties du constructeur (RC professionnelle, décennale, dommage ouvrage, garantie de remboursement de l'acompte, livraison à prix et délai convenu) : https://www.maisons-france-confort.fr/mentions-legales/. HEXAOM Services est enregistré auprès de l'ORIAS en tant que Courtier en financement, Niveau 1, sous le numéro 14001345.Agence Maisons France Confort de Magny-le-Hongre (77700)
- Téléphone :
- 01 84 80 92 96
- Adressse :
- 11 rue de Courtalin
77700 Magny-le-Hongre, France
