Maison neuve à
Arsy (60190) Référence : FBARSY75_4

Prix du projet : Maison avec Terrain

prix 237 000 €

  • 6 pièces
  • 4 chambres
  • Surface maison 91 m2

VENTE : maison T6 (91 m²) à Arsy
EMPLACEMENT PRIVILÉGIÉ - MAISON 6 PIÈCES NEUVE
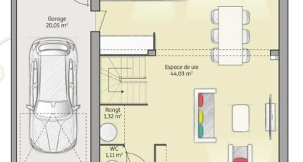
À deux pas de Compiègne, nous vous proposons en vente, bénéficiant d'un emplacement privilégié dans Arsy (60190), cette maison de 6 pièces de 91 m² et de 426 m² de terrain. Elle compte quatre chambres, une cuisine et une salle de bains.
C'est une maison de 2 niveaux. Elle est neuve.
La maison est située dans un secteur recherché. On trouve l'École Primaire Séraphine Louis à moins de 10 minutes à pied. Niveau transports en commun, il y a six gares à moins de 10 minutes en voiture. On trouve une bibliothèque à proximité du bien.
Elle est à vendre pour la somme de 237 000 €.
Contactez notre agence (Fabrice BONELLO : 06-09-50-50-09) pour toute question sur la maison.

Mentions légales

Terrain proposé par un partenaire foncier selon disponibilités et autorisation de publicité au prix de 80 900 €. Hors droit d'enregistrement et frais de notaire. Terrain + Maison proposés au prix de 237 000 € (Hors branchements et raccordements, papiers peints, peintures, revêtement de sol dans les chambres. Tarif modifiable sans préavis). Etiquette énergie : A. Différents modèles disponibles pour ce terrain. Assurances et garanties du constructeur (RC professionnelle, décennale, dommage ouvrage, garantie de remboursement de l'acompte, livraison à prix et délai convenu) : https://www.maisons-france-confort.fr/mentions-legales/. HEXAOM Services est enregistré auprès de l'ORIAS en tant que Courtier en financement, Niveau 1, sous le numéro 14001345.

Contactez l'agence de Beauvais

03 44 04 40 04

    * Champs obligatoires

    Vos informations sont traitées par HEXAOM et transmises à un conseiller commercial qui vous contactera afin de répondre à votre demande. Les plans et images présentés sur notre site sont la propriété d’HEXAOM et ne peuvent pas être reproduits sans son accord. Pour retrouver notre politique de protection des données personnelles et exercer vos droits conformément à la « loi informatique et liberté » cliquez-ici.